Деревянная скамья для жима лежа своими руками
Кто любит спорт тот здоров и бодр. Кого заинтересовал заголовок этой статьи, тот в курсе, что собой представляет такой силовой вид спорта как бодибилдинг. Многие ребята, мужчины, женщины хотят иметь идеальное тело. Но для походов в спортзал не хватает либо финансов, либо времени.
Предлагаю в домашних условиях, своими руками сделать такую скамью. Благодаря скамьи, вы предотвратите «застой» в росте мышц, подкачаете трицепсы, дельтовидную мышцу, большие и малые грудные мышцы.
Ну, под лежащий камень вода не течет, хочешь что-то иметь, нужно приложить к этому усилие. Итак, приступим к изготовлению скамьи для жима лежа.
Изготовление деревянной римской скамьи
Сделать деревянную римскую скамью может даже начинающий мастер. Для нее потребуются бруски, доски. Если досок в наличии нет, то подойдет обычный лист фанеры.
Этот тренажер выполняется по следующему принципу:
- Потребуется взять подходящую по размерам скамью, которую можно изготовить из одной широкой доски толщиной от 3 до 5 см.
- Необходимо приобрести две вертикальные стойки. Их сечение должно составлять около 50×50 мм, а высота — 1 метр. От краев каждой стойки нужно сделать отверстия диаметром около 3 см, в которые затем надо вставить края перекладины для ног.
- Чтобы изготовить перекладину для ног, следует взять круглый брус длиной в 1 метр и диаметром около 3 см. Края перекладины нужно вставить в отверстия.
- Потребуется опорная перекладина длиной в 1 метр и сечением 50×50. Она будет соединять 2 стойки, закрепить ее нужно в середину.
- Опора, которая потребуется для сиденья. С ее помощью спинка закрепится на перекладине. Изготовить ее можно из бруса или доски шириной от 3 см. Опора по длине должна быть немного короче сиденья.
- Ребра жесткости. Сиденье будет более надежным, если для усиления будут использоваться ребра жесткости. Снизу к спинке нужно прикрепить ребро из утолщенного материала.
- При сборке конструкции стоит использовать обычные саморезы.
Главным недостатком этого тренажера является его громоздкость. В маленькие квартиры установить такую конструкцию не получится.
Покупка тренажера
Благодаря небольшим габаритам, простоте работы с тренажером, его можно купить для домашнего использования. Надежный, качественный тренажер сделает тренировки безопасными, эффективными и комфортными.
Как правильно выбрать тренажер?
Среди большого ассортимента продукции, нужно суметь найти действительно качественную модель.
При выборе Римской скамьи обратите внимание на несколько деталей:
- Рама. Для ее изготовления должна использоваться высокопрочная сталь, прослужащая не один год. Китайские модели часто делают из силуминовых сплавов со значительно меньшим сроком эксплуатации.
- Обивка сидушки и спинки. Отличным материалом станет синтетическая нескользкая кожа высокого качества. Она не должна со временем линять или рваться. Швы должны быть аккуратными. Желательно, чтобы материал был гипоаллергенным, так как площадь его соприкосновения с телом во время занятий достаточно велика.
- Упор для ног. Валики также должны иметь прочное покрытие. Внутренняя набивка – достаточно мягкая, чтобы после занятий не появлялись синяки. Упор должен быть комфортным.
- Регулировка рамы. Желательна возможность изменять угол наклона рамы и высоту фиксации валика. Все регулирующие механизмы должны быть простыми и удобными. Возможность менять высоту позволит заниматься на тренажере людям с разным ростом.
- Максимальный вес нагрузки. Вес, заявленный в паспорте тренажера, должен быть сопоставим с весом занимающегося человека.
Популярные производители
Спортивные товары производит множество компаний.
На нашем рынке можно встретить Римский стул от:
- Body Solid – американский бренд, поставляющий товары для домашнего использования и профессионального уровня;
- Oxygen – тайваньская компания, специализирующаяся на недорогом, но качественном оборудовании;
- Kettler – тренажеры немецкого качества;
- Bronze Gym – немецкий производитель с заводами в Китае и Таиланде, специализируются на бюджетной и среднего уровня продукции;
- Matrix – от производителя Johnson Health Tech Co., предлагающего лучшее оборудование для тренировок. Производство США-Тайвань.
Можно встретить и другие менее именитые марки. Главное качество изделия, а не бренд.
Скамейки трансформеры чертежи
Ниже еще можете посмотреть подборку чертежей для проектов раскладных скамеек столов своими руками.
Детская скамейка с навесом
Согласитесь, выглядит такая лавочка очень мило. Хотите узнать, как сделать такую скамейку с навесом своими руками? Вот иллюстрации с пошаговыми схемами, которые помогут вам собрать скамейку легко и быстро. Всю подробную информацию, включая список материалов, распиловку с размерами и необходимые инструменты вы можете прочитать на сайте, ссылка находится ниже под этой небольшой галереей. Одно примечание: две доски 1×6 длиной 2,5 метра разрежьте на 5 частей по 41 см, а оставшаяся часть будет иметь длину примерно 39 см. Оставьте этот короткий кусок для концов спинки сиденья, которые немного короче, чтобы сохранить доски.
Вот короткая инструкция, как сделать детскую скамейку своими руками с чертежами. Сначала прикрепите перекладины на боковых стойках, как показано на схеме, используя саморезы длиной 5 см и клей. Проверьте, чтобы все углы были прямые. Соберите сиденье, затем прикрепите ножки. Примечание: для детей старшего возраста сиденье можно установить выше. Боковые полочки, это для цветочных горшков. Вы можете разместить, как вам нравится, если это вам это не нужно, просто обрежьте концы. Убедитесь, что расстояние между брусками 2×2 сверху такое же, как и у сиденья. Прикрутите саморезами и приклейте. Заполните все отверстия шпатлевкой. При необходимости нанесите дополнительные слои. Отшлифуйте и протрите влажной тканью. При необходимости используйте грунтовку или кондиционер для дерева.
Источник фото: www.ana-white.com/woodworking-projects/childs-bench-arbor
Скамейка с навесом чертежи
Вот небольшая подборка чертежей садовых скамеек с навесом, посмотрите, возможно, что-то пригодится для обустройства садовой мебелью вашей дачи.
Чертеж скамейки вокруг дерева
Скамейки вокруг дерева выглядят великолепно и отлично вписываются в ландшафтный дизайн сада или дачи. Если у вас есть такая возможность, вот чертеж скамейки вокруг дерева своими руками. Это не дорогой и не сложный проект, прочитайте инструкцию на сайте и с помощью представленных здесь чертежей вы сможете сделать замечательную лавочку вокруг дерева. Ссылка на первоисточник находится ниже.
Источник фото: howtospecialist.com/outdoor-furniture/8058/#more-8058
Ниже можете посмотреть еще несколько чертежей подобных проектов скамеек вокруг дерева, которые можно сделать своими руками.
Скамейка из бетона чертежи
Скамейки из бетона отличный вариант для сада, парка, дачи, такая уличная мебель надежная, долговечная и выглядит очень стильно. Здесь мы подобрали для вас пример с чертежами, как сделать классическую лавочку из бетона и дерева. Для тех, кому хоть раз приходилось иметь дело с цементом, это очень простой проект. Чтобы узнать все подробности о процессе изготовления скамейки, посмотрите видио на сайте автора этого проекта, ссылка ниже.
Справа на чертеже показаны габариты скамейки из бетона и дерева. Бетонные формы шириной 5 см и толщиной 2 см. Но это конкретно для этой лавочки, это можно изменить в зависимости от размеров скамейки
Обращайте внимание на основные моменты: обязательно используйте гладкую фанеру. Саморезы или шурупы закручивайте обязательно снаружи формы
Используйте клей, где будет контакт дерева и бетона. Установите кронштейны на досках.
Автор ДжастинИсточник фото: www.remodelaholic.com/modern-concrete-and-redwood-bench-tutorial/
Описание процесса изготовления, пошаговая инструкция
Штанга
Для изготовления штанги, изначально делаем заготовки под блины, вырезаем и сколачиваем из досок форму в виде круга.
Отмеряем середину и вкладываем кусочек трубы диаметром 32мм. Получаем центрованное основание. Края оббиваем жестью и соединяем ее с помощью саморезов. Форма готова. Делаем формы по такому же принципу для гантелей. Размеры формы можете корректировать сами, учитывайте, что чем больше блин, тем он будет тяжелее.
Теперь нам нужно сделать каркас, который будет прочно удерживать наш бетон.
Такой каркас вяжется из проволоки и укладывается на дно формы.
Для приготовления прочного бетона высокой марки мы должны смешать на 1 мешок цемента высокой марки, 2 мешка щебня и полтора мешка песка.
Все это разводится с водой до получения однообразной массы и укладывается в формы. Выравниваем шпателем все неровности и укладываем еще слой проволоки. Обязательно протрусите и утрамбуйте бетонную основу, дабы избежать образование полостей в блинах. Оставляем формы до полного высыхания раствора
В среднем это займет 3 дня.
После высыхания бетонного раствора аккуратно достаем блины из форм сделать это надо очень аккуратно,
если они не выходят, осторожно оббить края форм молотком и блины можно доставать. Готовые блины покрыть краской для бетона и оставить сохнуть.
Приступим к изготовлению грифов.
Их будем делать 2, один классический жимовой, второй будет W-образный.Для классического грифа берем нашу заготовку, шлифуем, для того чтобы она была ровная и удобная
После шлифовки, с помощью сварочного аппарата привариваем держатели на расстоянии 40 см от краев. В качестве замков мы будем использовать болты. Потом мы на этих 40 см просверливаем отверстия по 4 отверстия для установки замков.
Для изготовления W-образного грифа мы берем трубу заготовку,
зажимаем в тисках и равномерно загибаем середину до формы W. Для места под блины мы отступаем по 20 см. и привариваем держатели.
Конструкция грифов для гантели изготавливается по такому же принципу как и классический гриф.

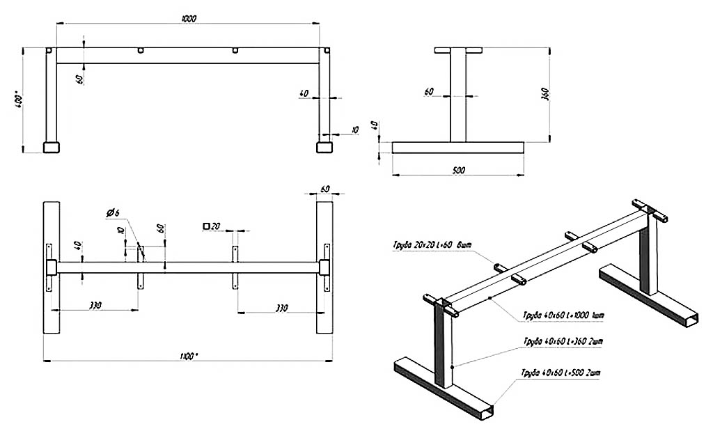
Скамья для жима
Вот скамья для жима будет более сложной конструкцией.
Берем наше сырье, в виде квадратной металлической трубы и делаем из нее заготовки. Нам следует учитывать конструкцию и габариты. Нашего отрезка полностью хватит для изготовления, а сам чертеж можно найти на просторах сети.

Боксерская груша
Для боксерской груши нам нужно выбрать материал. Лучшим выбором остается брезентовая ткань. Если нет возможности и навыков сшить мешок самому, то лучше отдать это в ателье. Следует предупредить, чтобы верхнее кольцо вшили не полностью, а ставили 4 промежутка длиной в 1 см. На эти промежутки будут одеваться карабины.
После того как мешок будет готов, нужно заняться его набивкой. Плотность определяется под каждого человека индивидуально, но если вы в спорте новичок, то набивать мешок следует не плотно, дабы избежать травм и дать кистям привыкнуть.
Подведение итогов
По окончанию всех работ у нас получается набор для развития силы, а именно штанга, W-образный гриф, пара гантель, скамья и груша.
По сроку использования, блинов хватит минимум на 2 года, груша при правильном уходе и не допускать воздействия влажной среды прослужит около 5 лет. Грифы и скамья вечны.
Карточки (таблички) ошибок
После того как сигнализация сработает и появятся зажженные световые сигналы, судья (судьи), не засчитавший поднятый вес, должен поднять соответствующую карточку (табличку), указывающую на причины неудачного подхода. Система номерных судейских сигнальных карточек (табличек) для сообщения о причинах неудачного подхода
Цвет карточек:
Ошибка № 1 – красная карточка
Ошибка № 2 – синяя карточка
Ошибка № 3 – желтая карточка
| Приседание | Жим лежа на скамье | Тяга |
| 1 (красная)Ошибка в сгибании ног в коленях и опускании туловища до такого положения, когда верхняя часть поверхности ног у тазобедренных суставов находится ниже, чем верхушка коленей | 1 (красная)Штанга не выдержана в неподвижном положении на груди с определенной и видимой паузой | 1 (красная)Неполное выпрямление ног в коленях при завершении упражнения Ошибка в принятии вертикального положения с отведенными назад плечами |
| 2 (синяя)Ошибка в принятии вертикального положения с полностью выпрямленными в коленях ногами в начале и в конце упражнения Всякое перемещение грифа из стартового положения вниз вдоль спины атлета более чем на толщину (диаметр) самого грифа во время выполнения упражнения | 2 (синяя)Любое явное (чрезмерное) неравномерное выпрямление рук во время выполнения жима Любое движение штанги вниз во время выполнения жима Отсутствие выжимания штанги на полностью выпрямленные руки при завершении упражнения | 2 (синяя)Любое движение штанги вниз прежде чем она достигнет финального положения. Если штанга оседает при отведении плеч назад, то это не является причиной того, чтобы не засчитывать поднятый вес Поддержка штанги бедрами во время подъема. Если штанга скользит по бедрам при подъеме вверх, но при этом ими не поддерживается, это не является причиной того, чтобы не засчитывать поднятый вес |
| 3 (желтая)Шаги назад или вперед, хотя боковое горизонтальное движение подошвы и покачивание ступней между носком и пяткой разрешаются Ошибка в соблюдении сигналов старшего судьи при начале или завершении упражнения Двойное вставание (подскакивание) из нижнего положения приседа или любое движение вниз во время вставания Касание штанги или спортсмена страхующими (ассистентами) между сигналами старшего судьи для облегчения выполнения приседания Касание ног локтями или плечами; разрешается легкое касание, если оно не помогает подъему штанги Любое бросание или сваливание штанги на помост после завершения приседания Несоблюдение любого из требований, содержащихся в описании правил выполнения приседания | 3 (желтая)Поднятие и опускание, подскакивание или движение вниз (вдавливание в грудь) штанги после того, как она была зафиксирована в неподвижном положении на груди таким образом, что это помогает атлету Ошибка в соблюдении сигналов старшего судьи при начале или завершении упражнения Любое изменение в исходном положении во время выполнения упражнения, т.е. любой подъем (отрыв) плеч, ягодиц от скамьи или ступней ног от поверхности помоста (блоков), или передвижение рук по грифу. Допускаются легкие или незначительные движения ступней ног. Носки и каблуки должны оставаться на поверхности помоста (блоков) Касание штанги или спортсмена страхующими (ассистентами) между сигналами старшего судьи для облегчения подъема штанги Любое касание ступнями ног атлета скамьи или ее опор Умышленное касание грифом стоек при выполнении жима, которое облегчает подъем штанги Несоблюдение любого из требований, содержащихся в описании правил выполнения жима лежа на скамье | 3 (желтая)Опускание штанги до получения сигнала старшего судьи Опускание штанги на помост без контроля обеими руками, т.е. выпускание штанги из рук Шаги назад или вперед, хотя боковое горизонтальное движение подошвы или покачивание ступней между носком и пяткой разрешаются Несоблюдение любого из требований, содержащихся в описании правил выполнения тяги |
Сборка тренажера по чертежам своими руками
Когда все параметры будут определены, можно переходить к сборке самого тренажера. Здесь стоит использовать чертежи и подготовленные схемы. Сборка проводится в такой последовательности:
- Станина фиксируется в начальном положении;
- После этого поперечину, которая находится на левой опоре станины, поворачивают на 90 градусов;
- На следующем этапе нужно будет установить верхние стойки. Здесь придется поднять правую часть станины. Фиксирующие болты вводятся в заранее устроенные отверстия;
- Далее, нижние стойки надежно прижимаются к станине. Здесь речь идет о правой опоре. Болт вставляется в определенное отверстие в перекладине. Он закручивается с помощью гайки, которая имеет ручку;
- Установка самой скамейки для жима лежа. Для надежной фиксации этого элемента используется металлический штырь, который вставляется в соответственные отверстия;
- Установка стальной трубы. С правой стороны скамейки устанавливается труба. Концы трубы укладываются на уголки, которые располагаются на стойках;
- Установка ножного рычага на основании тренажера. Крепление осуществляется с помощью одного болта.
С помощью такой инструкции можно быстро и без особых усилий соорудить тренажер для жима лёжа своими руками. Главное — правильно составить чертежи и следовать инструкциям.
Купить или сделать самому
Чтобы выполнять жим штанги лежа в домашних условиях, без скамьи просто не обойтись. Существует два варианта — купить самому или сделать самостоятельно.
Покупка в магазине
Купить необходимый снаряд в любом спортивном магазине не составит труда.
Преимущества покупки скамьи в магазине:
- доступность. Купив скамью, ее нужно будет только установить дома в подходящем месте;
- время. На покупку и установку скамьи уйдет не более 2-3 часов.
Несмотря на очевидные достоинства, есть несколько недостатков, на которые следует обратить внимание. Минусы:. Минусы:
Минусы:
- высокая стоимость оборудования. Очень часто идет переплата за бренд производителя;
- невозможность подобрать индивидуальные параметры под себя. В основном скамьи для жима лежа выпускаются в стандартной комплектации — если рост атлета большой, то ему будет трудно выбрать необходимую скамейку под себя.
Когда нет возможности купить необходимый снаряд в магазине, его можно изготовить самостоятельно.
Изготовление своими руками
Изготовить скамейку для жима в домашних условиях сможет почти каждый, даже начинающий мастер.
Плюсы:
- можно подобрать под себя любые параметры скамейки исходя из физиологических особенностей;
- деньги. Сделать скамейку самостоятельно менее затратно, чем приобрести ее в магазине.
Этот выбор подходит для тех, кто не располагает большими финансами или не хочет отдавать немалые деньги в магазине.
Недостатки:
- время. Сделать скамейку за 1-2 часа не получится, придется потратить на нее около пары дней;
- инструменты. Если в домашнем арсенале нет необходимых инструментов, то сделать скамью самостоятельно невозможно.
По сути — магазинный и домашний вариант мало чем отличаются друг от друга. Если изготовить тренажер самому, то он ничем не будет уступать магазинному варианту.

Критерии выбора
Домашние тренировки должны быть в первую очередь безопасными
Выбирать скамью для жима в магазине нужно очень осторожно
Особое внимание стоит уделить следующим параметрам:
Качество
Конструкция должна быть сделана из прочного материала
Важно обратить внимание на надежность крепления деталей и элементов. Не рекомендуется приобретать тренажеры с узкой постановкой стоек, иначе можно неправильно распределить нагрузку.
Компактные размеры
Неразборные скамьи отличаются надежностью и хорошей устойчивостью
Но не у каждого человека есть возможность выделить под данный тренажер постоянное место
Складные модели позволяют исправить положение. При покупке данного вида следует обратить внимание на качество механизмов складывания и трансформации.
Функциональность. Горизонтальные скамьи, как правило, имеют ограниченные возможности для занятий. Чтобы повысить универсальность спортивного снаряда, можно дополнить его следующими элементами: подставка для ног, брусья, поручни, стойка со страховочными упорами
Но не у каждого человека есть возможность выделить под данный тренажер постоянное место. Складные модели позволяют исправить положение
При покупке данного вида следует обратить внимание на качество механизмов складывания и трансформации.
Функциональность. Горизонтальные скамьи, как правило, имеют ограниченные возможности для занятий
Чтобы повысить универсальность спортивного снаряда, можно дополнить его следующими элементами: подставка для ног, брусья, поручни, стойка со страховочными упорами.
Силовая скамья для жима и пресса — это отличный тренажер для работы с гантелями и штангой. Для комфортных и продуктивных тренировок рекомендуется подобрать длину скамьи так, чтобы голова во время занятий не свисала вниз.
Простые поделки из пластилина
Пластилин — любимый материал для работы как самых маленьких, так и детей старшего возраста. С мягким, гибким пластилином запросто справляются детские руки. Самой простой идеей для поделки на спортивную тему есть футбольный мяч. Для его создания не требуется особых навыков и умений, достаточно просто скатать шарик.

Можно использовать несколько цветов пластилина, чтоб создать футбольный мяч с вставками. Посложнее будет слепить фигурки спортсменов, их атрибутику. Например, можно создать участников Олимпийских игр в Сочи на лыжах, боксера в перчатках на ринге, гимнастку с обручем в руке…

Разные скамейки
Самая простая, но и замечательно прочная спортивная лавка-«ипполитовка» может быть изготовлена по чертежу на рис; настил – прочная доска от 40 мм. С ней хорошо знакомы те, кто проходил в армии курс молодого бойца; по крайней мере, в прошлые времена. «Духи»-горожане скоро начинали смотреть на ипполитовку с изумлением и опаской: сколько, оказывается, всяких упражнений можно на ней проделывать! И она же отлично входит в состав 4-опорного тренажера.

На след. рис. – наклонная скамья для пресса. Такую, ввиду ее компактности и пользы, не помешает завести отдельную, если места в жилище достаточно. Вследствие отсутствия прямых углов материал послабее – профтруба 40х40. Упоры для ног – пруток 10 мм с резьбой на концах, обрезиненный до нужного размера. Резиновые муфты съемные: нижний упор регулируемый, а верхний убирается, если необходимо делать упражнения, при которых он мешает.

Далее на рис. – компактная силовая скамья со стойками для штанги. Упражнения на ней делают в основном сидя.Можно также качать пресс, глубоко прогибая спину. В таком случае упорами ног будет поперечная балка А, и тогда ее нужно обтянуть чем-то мягким или надеть резиновую муфту. Материалы – профтруба 40х40, а держатели штанги из стальной полосы толщиной от 6 мм.

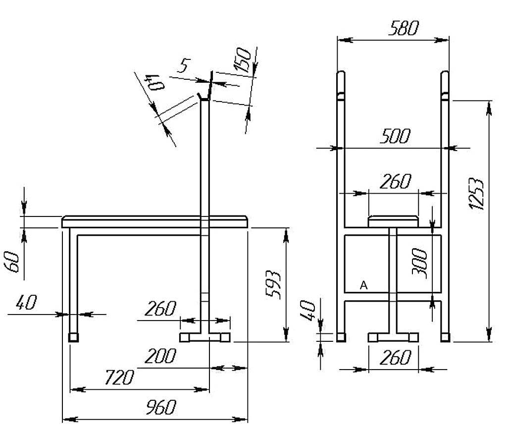
Следующий образец – атлетическая скамья уже для крепких ребят, уверенно управляющихся со штангой веса, равного их собственному, т. наз. парта Скотта. Материалы, соответственно – профтруба 60х60х2,5 и 50х50х2. Держатели грифа из такой же полосы, как и в пред. случае; сиденье и столик из фанеры от 20 мм.

Несколько тренажеров
Как намертво связать скамью-«ипполитовку» со стойкой для штанги, превратив в достаточно компактный 4-опорный тренажер, показано слева на рис. Там же справа – размеры и конструкция скамейки-трансформера под ту же раму. Основной материал там и там – профтруба 40х60. О фиксаторах стоек с держателями штанги вспомним ниже.

На след. рис. – чертежи с материальной ведомостью простого 3-опорного стационарного нерегулируемого тренажера с горизонтальной скамьей. Он более подходит для частных домовладений с достаточной величиной полезной площади. Изюминка данной конструкции – соединение дальней ноги скамьи с ее несущей балкой звеном под 45 градусов. Благодаря оптимальному распределению эксплуатационных нагрузок удалось выполнить снаряд, на котором можно делать упражнения с весами более 100 кг, из профтрубы 50х50.

Наконец, далее на рис. – чертежи и спецификация элементов на полнофункциональный домашний тренажер со скамьей-трансформером для жима и пресса
Обратите внимание на узел, выделенный красным. Это – наиболее простой и надежный для исполнения в домашних условиях способ фиксации стоек штанги
Штыри-фиксаторы (диаметром от 12 мм) будут, конечно, понемногу изнашиваться, но их никогда не заклинит и не закусит.

Еще о штанге
Как уже сказано, не удержанная на весу штанга способна причинить тяжелые увечья, вплоть до фатального исхода. И направить ее гриф в держатели в таких случаях нереально. Зато реально – предусмотреть 2 отрезка цепи, надежно закрепленные на стойках штанги. На других концах цепей – карабины, их набрасывают на гриф. Длину цепных страховочных звеньев берут такой, чтобы, держа штангу на полностью вытянутых руках, цепи провисали, но гриф отпущенной штанги не доставал до груди. Чтобы карабины не сползали на грифе, их достаточно примотать скотчем. Вдруг штанга рухнет, скотч, конечно, не выдержит, оба карабина съедут на один конец грифа, но дело обойдется испугом и, возможно, побитым полом.
О деревянных атлетических скамьях
Со штангой на деревянных спортивных снарядах заниматься нельзя, их конструкция не выдержит. Зато в ситуациях, возникающих вследствие неловкости тренирующегося, дерево «отдает» по телу куда менее чувствительнее, чем металл. Поэтому деревянными скамейками для жима и пресса предпочтительно пользоваться начинающим и несовершеннолетним. Кроме того, деревянные спортивные скамьи и тренажеры можно соорудить на даче или в загородном доме из остатков стройматериалов.

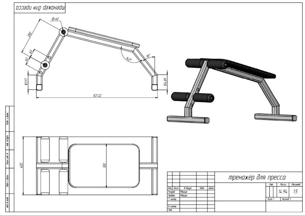
Конструкция наклонной деревянной скамьи для пресса и спецификация к ней показаны на рис., а на след. рис. – чертежи деревянного тренажера с наклоняемой скамьей и рычагом для упражнений ногами с грузом. Чтобы дерево держало эксплуатационные нагрузки, применена блочная система подвешивания грузов: они висят на нисходящих ветвях троса А. Поперечные балки Б – стальные обрезиненные.

Лучшие упражнения на скамье для пресса
Упражнений, которые можно выполнять на скамье для пресса, очень много. Их количество зависит от конструкции скамьи. Некоторые из моделей позволяют выполнять и гиперэкстензию.
Вот небольшой список упражнений, которые можно выполнять на большинстве скамеек для пресса.
Скручивания
- Займите положение лежа, разместив ноги между фиксирующими валиками.
- Движение к коленям осуществляется за счет сокращения мышц живота.
- Спина должна быть округлой на протяжении всей амплитуды.
- Руки можно прижать к груди или завести за голову.
- Также упражнение можно выполнять с дополнительным отягощением (с гантелью, диском-утяжелителем, мячом).
- Движение вверх выполняется на выдохе.
- Еще можно выполнять косые скручивания, добавляя поворот корпуса в середине амплитуды (попеременно).
Подробнее о скручивании на наклонной скамье →
Подъем ног
- Займите такое положение на лавке, чтобы таз находился на краю скамьи, а голова у фиксирующих валиков.
- Удерживайтесь руками за валики или края скамьи.
- В исходном положении ноги должны находиться вертикально.
- За счет напряжения мышц живота поясница должна быть прижата к скамье.
- Опускайте ноги на вдохе до параллели с полом.
- Возвратное движение выполняйте на выдохе.
- Для упрощения техники упражнение можно выполнять в пол амплитуды или же опускать ноги поочередно.
Жим гантелей лежа
Упражнение можно выполнять под различными углами, но мы рассмотрим вариант горизонтального жима.
- Скамью необходимо выставить в горизонтальное положение.
- Лежа на скамье, упритесь ногами в пол или зафиксируйте их на валиках.
- Расположите гантели у плечевых суставов. Локти должны смотреть вниз.
- С выдохом выталкивайте гантели вверх, выпрямляя локти.
- На вдохе возвращайтесь в исходное положение.
- При жиме старайтесь держать грудную клетку раскрытой, а плечи расправленными.
В этом упражнении можно использовать штангу, однако, для этого нужно иметь дополнительное оборудование (стойки) или партнера.
Еще можно выполнять разводку гантелей лежа для грудных мышц.
Зашагивания на скамью
Упражнение направлено на проработку мышц ног и ягодиц. Его можно выполнять без дополнительного отягощения.
- Станьте лицом к скамье. Сделайте шаг, поставив стопу на скамью.
- Выталкивая вес тела пяткой на выдохе, разгибайте колено и поднимайтесь на скамью, приставляя вторую ногу.
- Затем, в обратном порядке, опустите стопы на пол на вдохе.
- Движение на каждую ногу следует чередовать.
- Упражнение можно выполнять с отягощением. Гантели или утяжелители для ног будут отличным вариантом для усложнения.
Обратные отжимания
Упражнение направлено на проработку трицепсов и грудных мышц без дополнительного отягощения.
- Необходимо повернуться спиной к скамье, поместить ладони под плечами на краю скамейки, а туловище – ближе к кромке скамьи.
- Ноги следует выпрямить перед собой, упираясь на пятки.
- На вдохе сгибайте локти до прямого угла, опуская таз ниже к полу.
- С выдохом разгибайте локти полностью за счет силы трицепсов.
Для упрощения техники колени можно согнуть. Более сложный вариант – использование отягощения (штанга или диск-утяжелитель) или дополнительной возвышенности для ног.
Подробнее об отжимании от скамьи →
Скамья позволяет выполнять отжимания (классические) на возвышенности, при которых руки располагаются на скамье, а также размещать ноги вверху и отжиматься от пола, выполняя упражнение с негативным наклоном.
ИТОГ
Как видим, самые простые варианты тренажеров для пресса сделать на много проще, чем, к примеру, штангу и скамью для жима. Правда, для этого кроме желания и времени нужно материалы, а где их взять можно частично узнать из статьи «Как сделать тренажеры дома«. Но возможно не стоит так заморачиваться, ведь прекрасных результатов возможно и при выполнении упражнений на полу, турнике или брусьях, а дополнительную нагрузку возможно создать с помощью утяжелителей. К примеру, гантели за головой или на груди во время скручиваний на полу и подвешивания дополнительного груза к ногам при занятиях на перекладине или брусьях, но это уже со временем.
































