Виды планировки совмещенного санузла
Решающим фактором при выборе планировки санузла является дверь, которая располагается на длинной или короткой стене. В зависимости от этого существует несколько вариантов организации пространства.
Классический вид планировки
Варианты классической планировки компактного санузла
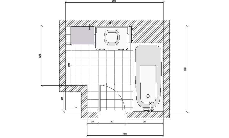
- Данный вид планировки предполагает, что ванна расположится вдоль короткой стены, тем самым оставив достаточно места для остальных предметов сантехники. Они найду себе место у протяженной стены.
- Унитаз и раковина установятся без проблем, возможно, поместится и биде.
- Место себе найдет и полотенцесушитель, ведь он такой незаменимый в комнате с повышенной влажностью.
- Последним штрихом станет освещение над зеркалом и по периметру потолка.
Для совмещенного санузла очень удобен подвесной унитаз
Мозаика сейчас в моде
Сглаженные углы в дизайне совмещенного санузла
Варианты планировки совмещенного санузла с душевой кабиной
- Установленные в полукруглые ниши ванна и раковина создадут приятные ощущения пребывания в помещении.
- Также каждый крепежный элемент коммуникации спрячется в короб, поверх которого установятся зеркала.
- Такой вариант подойдет для оформления дизайна маленького совмещенного санузла с душевой кабиной вместо ванны. Кабина, выполненная из стекла может дополняться небольшими стенками, выложенными из ПВХ панелей или кирпича и отделанными плиткой. Это поможет смягчить острую стеклянную кабину и дополнит интерьер.
Угловая ванна занимает меньше места
Закругленные контуры раковины и ванны способствуют созданию эффекта свободного пространтсва
В санузле площадью менее четырех квадратов много что можно разместить
Функциональный вариант планировки
- Если дверь обосновалась на короткой стене и смотрит прямо на такую же по размеру стену, здесь уместно установить душевую кабину.
- Стиральную машину можно поставить под раковину. Так создается целостный объект – раковина плавно переходящая в машину.
- Унитаз найдет себе местечко между кабиной и раковиной. При возможности сливной бак спрячется в стене и не займет много пространства.
Встроенная стиральная машина значительно экономит и без того ограниченное пространство совмещенного санузла
Если площадь не позволяет использовать полноценную ванну и душевую кабину, можно загерметизировать пол и устроить наклонный слив вместо большого поддона
Элементом, разделяющим мокрую зону от остального пространства, может стать стеклянная перегородка
Дизайн совмещенного санузла с угловой раковиной
- Выбор последнего варианта дает возможность сохранить достаточно свободного пространства и поместить стиральную машину, как и в предыдущем варианте, под угловую раковину.
- Также угловая раковина дает понять, что появляется шанс поставить зеркало с полочками и подсветкой в том же углу. Тем самым оставив небольшую часть стену под полотенцесушитель, крючков для банных халатов и другой одежды.
Удачная компоновка для малогабаритного санузла
Угловые раковины отличаются компактностью, при этом мало уступают обычным по фактическим размерам
Зеркала можно подобрать с подогревом, подсветкой, в раме или без неё
Однако зеркальных элементов не должно быть слишком много, чтобы не перегрузить интерьер совмещенного санузла маленького размера.
Нестандартная форма ванны – тоже вариант
Проектирование
Прежде чем начинать создавать дизайн неудобной маленькой ванны, совмещенной с туалетом, предстоит пройти этап проектирования.
Предваряет его согласование, обязательное для квартир в панельном доме. Фиксируют разрешение в документах БТИ. Затем нужно оформлять акт в жилищной инспекции. В нем отражают узаконивание завершенной перепланировки.



Не потребуется прохождение процедур, если работа ведется в частном загородном особняке с котельной. Здесь санитарная зона может располагаться на мансарде. Доступ обеспечивает лестница.
Затем нужна разработка дизайн-проекта. Его следует заказывать у специалистов. Они учтут вкус владельцев и предложенные ими идеи. Выберут наиболее удобный и правильный вариант для помещения. Разработают чертежи, с указанием габаритов всех предметов. Будет предложена цветовая палитра и рекомендованы виды отделки.
При самостоятельном составлении проекта используют специальные компьютерные программы. При их помощи разрабатывают схемы с разной расстановкой всех мебельных и сантехнических предметов.
Особенности совмещенного варианта
Выгода от объединения двух помещений
До сих пор идет полемика между сторонниками раздельного и совмещенного варианта, для каждой семьи остановиться на определенном решении возможно путем выбора дизайна, определения желаемой функциональности помещения, материального достатка и количества людей, проживающих в квартире.
- Первым достоинством является появление большей площади для создания дизайна. Установка стиральной машины при раздельном варианте не представлялась возможной, а в случае увеличения площади можно компактно разместить все требуемые устройства и проложить все коммуникации по своему проекту.
- Экономятся средства на отделку ванной комнаты из-за отсутствия одной стены. Для освещения ставится один светильник, вместо двух, нужно обустраивать единственную общую дверь в комнату.
- Появляется возможность создать красивый дизайн ванны, совмещенной с туалетом, гораздо больше пространства позволит выполнить задуманный интерьер с максимальной эффективностью.
Какие присутствуют неудобства
- В некоторых случаях для сноса стены требуются разрешительные документы от архитектурных инстанций, которые иногда нужно ждать долгое время. Помимо потерянного времени это грозит определенными затратами на оформление бумаг.
- Если в квартире проживает более трех-четырех человек, то использование гигиенических помещений может создать очередь перед ванной комнатой по утрам и в вечернее время.
Правила объединенного санузла
Хотя места в новом помещении становится больше, но и желание разместить на площади много полезных устройств тоже возрастает. Помимо этого, появляется насыщение помещения различными коммуникациями, для прокладки которых тоже нужно предусмотреть определенное место.
Какую бы отделку ни предусматривал новый интерьер, необходимо помнить, что помещение должно быть гигиеничным и поверхности лучше предусматривать из легко очищающихся материалов. Все материалы, применяемые для реализации дизайна, должны обладать влагоотталкивающими свойствами.
Необходимо предусмотреть мощную вентиляцию совмещенного помещения ванной. Лучше выполнить искусственный вариант. Часто делают так, что при включении света начинает работать и вентиляция. Соответственно, из-за невыгоды постоянно палить свет, в помещении ванной вытяжная вентиляция действует не постоянно. Гораздо эффективнее сделать отдельные выключатели для таких функций.
Чтобы удачно совмещать в дизайне помещении несколько нужных и важных предметов мебели и сантехники, приобретают наиболее компактные варианты. Примером могут служить специальные раковины, предназначенные для установки над стиральной машинкой, угловые варианты умывальников, унитазов. Кабинки желательно устанавливать с округлыми формами, а не прямоугольные, которые занимают лишнее место.
Для хранения всяких гигиенических и чистящих средств устраивают узкие мебельные пеналы в местах, где есть для этого свободное пространство. Таких мест, которые появились после установки приборов, может быть много, например, между унитазом и биде, раковиной и унитазом, кабинкой и стиральной машиной. В таком случае в центре ванной комнаты останется много свободного места для передвижения.
Пространство под ванной тоже используют для хранения, устроив по бокам откидные или полностью съемные панели.
Ванная со стиральной машиной
Нередко при оформлении дизайна совмещенной ванной 4 кв. м. возникает острая необходимость поместить в помещения стиральную машину
При формировании такого интерьера важно расположить все предметы максимально компактно
Лучшим вариантом будет приобретение бытовой техники маленького размера. Однако при наличии большой семьи такой вариант не подходит. В это случае дизайн совмещенной ванной со стиральной машиной может выглядеть так:
- В дальне углу размещается душевая кабина или ванна, огороженная шторкой.
- Напротив этой стены монтируется раковина. Рядом с ней или под нее устанавливается стиральная машина.
- Унитаз ставится около раковины на одной плоскости или рядом с душевой кабиной.
Стандартный дизайн совмещенных ванных комнат выглядит одинаково и включает в себя следующие элементы: душевая кабина (ванна), унитаз, раковина, стиральная машина, зеркало, шкафы. В зависимости от размеров комнаты и предпочтений хозяина помещение может быть укомплектовано дополнительными атрибутами.
Бытовую технику нужно подбирать под размеры конкретной совмещенной ванной. Заранее необходимо продумать оптимальные варианты канализационных коммуникаций. Все это позволит максимально качественно отделать или перепланировать ванную комнату.
Совмещённая и раздельная ванная комната 4 кв м. Особенности

Планируя ремонт санузла с небольшой площадью, следует заранее определиться с его основными функциями. Если ванную и туалет по каким-то причинам нельзя объединить в одно помещение, появляются дополнительные ограничения, которые потребуется «обходить».
- Пространство не удастся увеличить за счёт сноса перегородки.
- Туалет получится совсем маленьким.
- Стиральную машинку в ванной можно будет установить лишь в одном месте – под раковиной. Следовательно, от традиционной тумбы придётся отказаться и одним местом для хранения станет меньше.
Конечно, отдельная ванная – это удобно, особенно когда речь идёт о больших семьях. Но при ограниченной площади возможность спокойно купаться, не опасаясь внезапно быть изгнанным недовольными родственниками, уже не кажется такой привлекательной. Острая нехватка мест для хранения, теснота и повышенный травматизм сводят на «нет» удовольствие от водных процедур. Можно ли компенсировать подобные изъяны?
Как сделать максимально комфортным раздельный санузел

- Вместо ванны лучше установить открытую душевую кабину – появится дополнительная площадь для пенала или вместительной бельевой корзины.
- Над умывальником также можно оборудовать шкафчик для косметики и средств по уходу за собой. Он бывает двух видов. Либо по центру устанавливается зеркало, а вокруг него крепятся две закрытые секции хранения. Либо дверцы самого шкафчика делают зеркальными. Такое решение позволяет визуально скорректировать интерьер ванной комнаты, создав дополнительную перспективу.

- Для тех, кто любит купаться долго и с наслаждением, душевая кабина вряд подойдёт. В этом случае под обычной ванной делают дополнительные места для хранения, закрыв их декоративной дверцей.

- Обычно не задействована зона над дверью, а ведь здесь можно установить горизонтальную полку для бытовой химии. С ней дизайн ванной получится оригинальным и практичным.
- Для раздельного туалета рекомендуется использовать консольный унитаз, вся инженерная часть которого, в том числе и сливной бачок, убирается в стену. За счёт этого, оборудование занимает меньше места и визуально кажется не столь массивным. Конструкция подвесная и не опирается на пол, что значительно облегчает уборку помещения.
- Если выбрать рамную модель консольного унитаза, есть возможность отодвинуть его от несущей стены, а освободившееся пространство использовать под секцию хранения. Шкаф делают и при напольном варианте сантехники, который ещё достаточно часто выбирают из-за доступной цены и лёгкости монтажа.
Совет: Если планировка ванной компактная, правильнее использовать сантехническое оборудование и мебель с раздвижными, а не распашными дверцами. Это сэкономит место и убережёт от травм. Непосредственно дверь в помещение также рекомендуется делать складной или раздвижной. В крайнем случае, можно перенести петли, чтобы она открывалась наружу.
Достоинства и недостатки совмещённого санузла


Маленькая ванная, соединённая с туалетом, с одной стороны доставляет неудобства, поскольку приходится искать место для дополнительной сантехники. Но при этом, за счёт расширения пространства можно проявить гибкость, чтобы планировка комнаты получилась оптимальной.
Продумывая дизайн ванной 4 м, совмещённой с туалетом, следует использовать те же приёмы, что и для раздельного санузла. Но:
- Появляется несколько вариантов установки стиральной машинки, позволяющих не связывать её расположение исключительно с умывальником. Благодаря этому расширяются возможности выбора раковины. Лучше всего приобрести модель, встроенную в тумбу или угловую разновидность, которую часто крепят над узкой стороной каплевидной ванны.
- Над унитазом можно сделать шкафчик для хранения банных принадлежностей и моющих средств. Рекомендуется выбирать угловую модель сантехнического устройства – она удобна и занимает минимум пространства в камерном помещении.
- Если позволяет планировка, можно отделить унитаз невысокой перегородкой с полочками для хранения моющих средств.



Особенности планировки совмещенного утилитарного помещения
При соединении двух небольших помещений (ванной и туалета) всегда получается большее по площади пространство, которое обладает рядом преимуществ:
- за счет увеличения площади, можно создать более эргономичную, комфортную и практичную обстановку;
- можно использовать стандартные, а не малогабаритные модели сантехники (бытовой техники, если это необходимо);
- учитывая, что убирается стенка, разделяющая два помещения, затраты на ремонт сокращаются на отделку этой поверхности (экономия также прослеживается на установке только одной двери на входе в совмещенное помещение);

- осуществлять уборку в одном помещении также будет проще и быстрее (меньше затрат на чистящие средства);
- в увеличенном пространстве можно повысит уровень эстетики – «спрятать» все инженерные системы, расположить сантехнику по нормам эргономики, добавить стиральную машину, если в этом есть необходимость, расположить системы хранения с высоким уровнем удобства, использовать двойную раковину для экономии времени на сборы по утрам.
Планируя расположение сантехники и систем хранения (бытовых приборов), необходимо учесть некоторые правила, соблюдение которых будет гарантировать комфортность их использования:
- расстояние перед унитазом не должно быть менее 50см, а по бокам от его центральной оси приблизительно по 40см;
- свободное пространство перед душевой кабиной, ванной и раковиной не должно быть менее 60см для удобства эксплуатации;
- раковина обычно располагается на высоте 80-85см по отношению к напольному покрытию, ее ширина регламентируется в пределах от 50 до 65см, но для малогабаритных помещений возможно использование компактных моделей с шириной порядка 40-45см и угловых вариаций мойки;
- чтобы умываться и проводить другие санитарно-гигиенические процедуры перед раковиной было удобно, расстояние от нее до стены должно быть не менее 20см;
- полотенцесушитель или вешалки необходимо располагать над ванной на расстоянии не менее 50 см;
- если в вашей ванной комнате будет двойной умывальник (две раковины), то расстояние между ними должно быть не менее 25см (тогда для экономии времени можно будет проводить утренний или вечерний моцион одновременно двоим домочадцам);
- расстояние между смесителями двойной раковины варьируется в пределах от 80 до 90-100см.
В стандартных квартирах с маленькими ванными комнатами особенно важно не только выбрать эффективную планировку, но и правильно соблюсти масштаб, ведь выкраивать придется буквально каждый сантиметр площади. Если в частном доме с двумя-тремя этажами планируется организация ванной комнаты на каждом уровне, то целесообразнее располагать утилитарные пространства одно над другим
Если в частном доме с двумя-тремя этажами планируется организация ванной комнаты на каждом уровне, то целесообразнее располагать утилитарные пространства одно над другим.
Если ванная комната имеет площадь менее 3.5 кв. м, то расположить ванну, унитаз и раковину с выполнением эргономических требований едва ли получится. Оптимальным решением для малогабаритных помещений будет установка душевой кабины или зонирование сектора для водных процедур при помощи стеклянной перегородки.
В зависимости от формы помещения, можно встроить ванну вдоль одной из малых стен (как правило, напротив двери). В этом случае, возможно, придется поступиться некоторым комфортом и установить ванну меньших размеров, чем хотелось бы.
Совмещенный санузел
Трудно сказать, насколько оправдана идея совмещения ванной комнаты с туалетом. Во времена советского строительства малогабаритного жилья было необходимо экономить каждый квадратный сантиметр площади. В наши дни объединение ванной комнаты с туалетом остается очень популярным.
С одной стороны, у такой планировки есть несомненные плюсы:
- полезная площадь увеличивается;
- расходуется меньше отделочных материалов;
- расширяются возможности для разработки стильного интерьера ванной;
- два маленьких помещения объединяются в одно просторное.
Главный недостаток – совмещенный санузел невозможно использовать сразу нескольким людям. Если хозяева решаются объединить ванную с туалетом, то к минусам стоит отнести все неудобства, связанные с долгосрочным ремонтом в функциональных помещениях, и необходимость узаконить перепланировку.

О нюансах дизайна в зависимости от размеров санузла
Если с большим пространством проблем нет, то для ремонта комнаты маленького размера (обычно это панельный, пятиэтажный дом или хрущевка) следует учесть некоторые нюансы.
Угловые раковины, душевые позволят оставить больше свободного пространства в центре комнаты.
Сочетание цветов
Яркий аксессуар в сочетании с пастельными тонами стен создаст уют, теплоту. С помощью холодных оттенков (глубокий синий, серый, темно-голубой) помещение приобретет глубину, насыщенность.
Пространство ванной комнаты можно преобразить за счет применения определенных оттенков в отделке.
Важно! Небольшая комната станет комфортней, просторней при использовании белого, бежевого цвета
Керамическая плитка в отделке
Иллюзия простора будет появляться при кладке плитки двадцать на тридцать сантиметров. Если устанавливать плитку горизонтально – стены расширяются, вертикально – приподнимается потолок.
Главная задача при обустройстве маленькой ванной комнаты без туалета – это правильная организация пространства.
Выбор оборудования, декора
Маленький санузел визуально станет больше при наличии зеркал, прозрачных, зеркальных элементов. В выборе сантехники предпочтение отдается компактности (ванная углового типа, душевая кабина), чтобы можно было разместить раковину, стиральную машинку.
Выбирая между ванной и душевой кабиной, лучше отдать предпочтение последней.
Выбор отделочных материалов
Функциональность данной комнаты направлена на определенное целевое назначение – прием ванной, душа, что влечет за собой соответствие нескольким факторам.
- Влагостойкость на оптимальном уровне, практичность.
- Эстетическая привлекательность.
- Высокое качество.
- Способность переносить изменение температурного режима.
Спокойные и светлые оттенки позволяют сделать помещение более объемным.
Потолок
Наиболее подходящими материалами (устойчивость к влаге) будут следующие.
- Панели пластикового типа.
- Поливиниловая плитка.
- Обои водостойкого вида.
- Декоративная штукатурка.
Используйте орнамент в декоре деликатно, не перегружая небольшое пространство ванной.
Обратите внимание! Для потолка подойдет ПВХ натяжной потолок. Он хорошо относится к влажной среде, плюс визуально увеличивает помещение
Напольное покрытие
Основные требования.
- Износостойкость повышенного уровня.
- Прочность (материал обязан выдерживай вес сантехники, мебели).
Напольная плитка для ванной комнаты должна быть как можно менее скользкой.
Оптимально применять плитку клинкерного, керамического типа. Для бюджетного варианта допустимо использование линолеума с высоким классом износостойкости, влагостойкости.
Чтобы ваши ноги всегда оставались в тепле и вы не подхватили простуду холодной зимой, в ванной рекомендуется установить систему теплых полов.
Обратите внимание на фактурность поверхности во избежание травмоопасных ситуаций!
Стены
Декорирование допускает множество вариантов, помогающих создавать индивидуальное оформление.
Классическим вариантом отделки стен в ванной комнате является отделка плиткой.
- Древесина, обработанная специальными составами против поглощения влаги.
- Инсталляции из мозаики.
- Плитка керамического типа.
- Камень (натуральный, искусственный).
- Стеклянные панели.
- Обои влагостойкие.
- Штукатурка фактурная.
Эффект визуального увеличения пространства за счет отражающих поверхностей действует и в отношении плитки для стен.
Ремонт
Ремонт ванной, подразумевающий ее превращение в уютное пространство для гигиенических и естественных процедур, подразумевает расчет количества отделочного сырья, его правильную покупку и использование
Важно не только купить качественную облицовку, подходящую для оформления ванной. Имеет значение ее уместность с эстетической точки зрения. Например, обилие одной отделки сделает интерьер ванной скучным
Например, обилие одной отделки сделает интерьер ванной скучным.
Выразительность фактура получает только при сравнении. Поэтому стены, потолок, а также пол стараются отделать разным по цвету и рисунку сырьем. Имеет значение расположение отделки. Лучшим подходом, по мнению стилистов, является выделение отделочным материалом функциональных зон.
Чем креативнее материал, тем умереннее его использование. Например, при выделении стены фактурой под кирпич приходится отказаться от массы аксессуаров. Обычно такой дизайн подразумевает минимальный вариант украшательства ванной. Другие стены придется сглаживать, например, однотонными покрытиями вовсе без рисунка.
Как визуально увеличивать пространство в ванной 5 кв.м.
Даже при грамотной планировке, может показаться, что места недостаточно. Тогда на помощь приходит эффект зрительного увеличения. Для этого применяют несколько тактик.
Обратите внимание на белый цвет. Он практичен для ванных комнат, создают иллюзию лишнего пространства особенно, если задействованы глянцевые поверхности
Такие детали отражают интерьер, создается ощущение легкости и свободы.
Применение большого зеркала в зоне умывальника. Дополнительно визуализировать пространство поможет лёгкая подсветка сверху.
В качестве отделочного материала должна выступать некрупная керамогранитная плитка. Большие фрагменты кафеля, будут скрадывать пространство.
Создание искусственных перегородок, пластиковых ширм. Такие детали делают комнату воздушнее и визуально больше.
Применение подсветки на навесных модулях гарнитура. Для этой цели задействуют теплые тона освещения: желтый, хорошо рассеивающийся лунный.
Дизайнеры не советуют загромождать полки и стеллажи различными аксессуарами. В качестве декора могут выступать интересные крючки, вешалки, средства для мыла, подставки для зубных щеток.
Организация имитации свободного пространства кафелем с водным рисункомИсточник yandex.by
Глянцевые покрытия для облицовки стен и пола в ваннойИсточник postroika.biz
Ванная комната с функциональной зоной и большим зеркаломИсточник homester.com.ua
Ванная комната в белом цвете в стиле лофтИсточник rostov.pronovostroy.ru
Степень преображения помещения и выбор стилистики
Когда в семье есть малыши, нагрузка на санузел возрастает, поскольку их приходится часто подмывать и застирывать одежду. И это неправильно, когда один купается, другой ходит в туалет на виду у другого члена семьи, даже если это однополые дети. Но иногда приходится использовать определенные хитрости и отгораживаться во время гигиенических процедур, когда есть совместная ванна с туалетом, в дизайне которых продуманы перегородки.

Начинать преображение санузла следует с проекта, позволяющего оценить эргономику, учесть все детали и правильно рассчитать материалы
Ремонт санузла предполагает разную степень преображения:
- снос перегородки у совмещенных ванны и туалета с новым дизайном;
- замену труб и сантехники;
- обновление поверхностей своими руками;
- качественное преображение гигиенической комнаты с привлечением специалистов и дизайнеров.
Часть работ можно сделать самостоятельно, особенно на стадии демонтажа и подготовки поверхностей. Замену коммуникаций и установку новой сантехники рекомендуется поручить специалистам. Часть косметического ремонта вполне доступно сделать своими силами, чтобы существенно сэкономить.

Удобная ванная комната имеет продуманную планировку с функциональными зонами и пустые места для свободного перемещения

Душевая кабина снизит расход воды, что поможет сэкономить деньги
Наиболее эффектно смотрится ремонт, где все компоненты подчинены единому стилистическому решению. Есть малоизвестные и узнаваемые стилистики дизайна ванной комнаты с туалетом, но выбирать нужно то, что ближе по духу и эстетике:
- урбанизм (лофт, хай-тек);
- неоклассика;
- экостиль;
- этнические направления (соответствие определенной географической точке);
- модерн и постмодернизм;
- кантри (шале, прованс, русский терем);
- исторические направления (ренессанс, готика, барокко, ампир);
- экспрессионизм;
- авангард и футуризм;
- морская тематика;
- арт-деко;
- минимализм (городской, скандинавский, японский);
- фьюжн и эклектика.

Санузел в стиле модерн

Дизайн ванной в стиле бионика
В одних решениях уместны яркие цвета и контрастные сочетания. В других, таких как неоклассика в интерьере совмещенной с туалетом маленькой ванной комнаты, характерны пастельные тона и плавные переходы. Эффектный дизайн со стилистической привязкой можно заказать у специалистов или выполнить самостоятельно, вдохновившись готовыми иллюстрациями.

Оформление совмещенного санузла в классическом стиле может вызвать некоторые сложности из-за специфики направления, но утонченный, аристократический вид стоит таких усилий
Для тех, кто не разбирается в стилистике интерьеров, важно хотя бы различать классику и современный дизайн, хотя возможна и частичная эклектика (смешение) с другими направлениями. Для искушенных ценителей важно выдержать все в едином дизайнерском ключе
Например, в интерьере маленькой ванны, совмещенной с туалетом, уместен минимализм, имеющий 2 наиболее ярких этнических направления – скандинавское и японское. Их можно подчеркнуть отделочными материалами и аксессуарами. Скандинавы отдают предпочтение натуральной древесине, белому цвету кафеля и современным резервуарам оригинальной формы. Японцы предпочитают бамбук и камень, близость к природе и гибки линии.

Скандинавскому стилю присущи лаконичность форм и природные текстуры

Японская ванная комната отличается простыми формами
Классическая ванная комната – это традиционные материалы, включая мрамор и его имитация, емкости привычной формы. Светлая палитра, не исключающая линейные контрасты в виде горизонтальных и вертикальных линий, расширяющих пространство, а также зеркала. Это осветительные приборы, напоминающие бра и люстры в виде подсвечников.
Современный дизайн подходят для любого помещения, включая ремонт в хрущевке, если выбрать компактные емкости, небьющееся стекло и хромированную фурнитуру. Но интерьер ванной должен перекликаться со смежными комнатами, чтобы не контрастировать по атмосфере помещения. Особой изюминкой может стать подвесной угловой унитаз и многоуровневая раковина, а отделке можно использовать панно из зеркал и битой плитки.

Ванная должна радовать глаз, даже если это крохотная комната
Историческая стилистика – это дорогая отделка и роскошь во всем. Многие варианты дизайна ванной комнаты, совмещенной с туалетом, скрывают унитаз – гигиеническая комната больше напоминает будуар светской львицы. Можно сделать усредненный дизайн или рафинированный, выдерживая в духе барокко, рококо, под ампир или дворцовый стиль, как на фото.
Полезные советы, как сделать ванную комнату просторнее
Маленькая ванная может выглядеть вполне стильно и уютно. Чтобы визуально сделать ее просторнее и добавить в помещение воздуха, учтите следующие рекомендации:
Оптический эффект. Для его достижения может использоваться простая плитка. Так, белый цвет сам по себе расширяет пространство, но можно укладывать простую белую керамическую плитку не перпендикулярно либо параллельно, а диагонально. Таким образом, помещение будет выглядеть просторнее. Укладка ее таким способом возможна как на все стены, так и на конкретные участки. Но нужно учесть, что это решение увеличивает расход материала. Если использовать его для пола, можно визуально скрыть имеющиеся неровности.
Зеркало. Представить ванную без зеркала нельзя. Даже в маленькой комнатке можно использовать большие зеркала — благодаря тому же оптическому эффекту они делают помещение просторнее. Крепить их можно к стенке, куда примыкает ванна. Удачный вариант — зеркало, продленное от простого прямоугольника по перпендикулярной стене. При установке большого зеркала, его нужно будто утопить в уложенную на стену плитку, чтобы поверхность была максимально ровной.
Полки. Хорошо, если маленькая ванная имеет высокие потолки, но и при стандартных можно подобрать удачные решения. Полки могут устанавливаться на верхние части стен. Их применяют для хранения бытовой химии и текстиля.
Освещение. Для того чтобы помещение визуально стало выше и просторнее, можно использовать разноуровневое освещение. Хорошо, если в помещении достаточно естественного света. Однако в квартирах такое встречается редко, поэтому стоит правильно организовать искусственный. Освещение должно равномерно заливать пространство. Отлично подойдет совмещение бра и потолочных светильников.
Еще раз о цвете. Основное правило при обустройстве маленькой ванной — использование светлых тонов
Их можно дополнять яркими акцентами, но важно не перестараться с последними. Не стоит использовать темную плитку
Помимо того, что она зрительно делает помещение еще меньше, на ней сильно видны разводы от воды.
Даже если площадь ванной составляет всего 3 квадратных метра, можно сделать ее уютной и стильной. В этом помогут правильные материалы, цветовое оформление и современная сантехника, отличающаяся компактностью и функциональностью.
Мини- ванная комната в 3м²
Дизайн очень маленькой ванной комнаты должен быть предельно лаконичным и продуманным по функции.
Некоторыми удобствами, возможно, придётся пожертвовать.
- Скажем, чтобы разместить в камерном пространстве унитаз, придётся отказаться от полноценной ванны, заменив её угловой душевой кабинкой.
- О стиральной машинке в подобных интерьерах речь, как правило, не идёт.
- Для отделки стен походит керамическая плитка, либо, в бюджетном варианте, пластиковые панели. Использование других материалов в совсем небольшом помещении с высокой влажностью – критично.
Декоративные идеи для маленькой ванной комнаты основаны на тонкой игре деталей, качестве отделочных материалов, чистоте форм и линий. Среди наиболее подходящих стилей следует выделить модерн, этно и ретро-направление. Они позволят создать необычную атмосферу, компенсируя оригинальным дизайном недостаток площади.
Ванная в 5м²
При такой площади обустроить комфортное и выдержанное в определённом стиле помещение намного проще. Не придётся идти на хитрости, чтобы втиснуть стиральную машинку и сантехнику, есть, где разместить мебель, найдется место даже для приятных мелочей, вроде декоративной перегородки, отделяющей унитаз от основного пространства, красивой корзины для белья или банкетки.
Тем не менее, перед нами всё же маленькая ванная комната, имеющая определённые стилевые ограничения. Современные направления – модерн и минимализм по-прежнему предпочтительнее классики, ар-деко, кантри или Прованса, где требуется больший простор. Ванную в центре комнаты на пяти метрах квадратных не поставишь, да и для изысканного туалетного столика будет тесновато.
Отделку, мебель и сантехнику в данном случае подбирают, ориентируясь на дизайн небольшой ванной комнаты – светлые цвета, эргономичные модели и минимум аксессуаров.
Основные этапы планировки
Любой вменяемый хозяин начинает свою деятельность с составления плана. Совмещенный санузел имеет примерно поровну сторонников и противников. Лично я считаю, что уютный интерьер маленькой ванной комнаты совмещенной с туалетом будет радовать своих хозяев, только когда в квартире проживает два, максимум три человека.
Если же малогабаритная хрущевка стала пристанищем большой семьи в нескольких поколениях, то от такой оригинальной идеи лучше отказаться. Вы только представьте, что во время утреннего моциона в двери совмещенной ванны постоянно стучатся дети, а на очереди еще и любимая бабушка.
Когда решение принято, следующим этапом станет прорисовка плана помещения. То есть где именно будут стоять унитаз, ванная, раковина, стиральная машина, душевая кабина и сопутствующая мебель, если на все это конечно хватит места.

Стиральная машинка в ванной.
Не зря в свое время умные люди разрабатывали ГОСТы и СНиПы, к тому, что в них написано при составлении плана стоит прислушаться. Ведь мало кому понравится сидя на унитазе, упираться коленями в раковину или выходя из душа, постоянно цепляться за шкаф.
Дабы вам не углубляться в дебри нормативных документов, я выписал основные допуски, которые могут пригодиться:
- Непосредственно перед душевой кабиной или любой ванной минимально допустимое полезное пространство составляет 70 см. Но это минимум, для комфортного пользования нужно делать 105 см;
- От полотенцесушителя до ванной или душа положено оставлять порядка 50 – 70 см;
- Унитаз это особое место. Норматив свободного пространства перед ним стартует от 60 см, а по бокам нужно оставлять минимум по 40 см;
- По правилам раковина должна устанавливаться на высоте 80 см. Ниже делать не имеет смысла, в этом случае от раковины лучше вообще отказаться и умываться в ванной. А высокий умывальник удобен только для высоких людей, детям с ним будет не комфортно;

Угловая сидячая ванна.
- Зазор между стенкой и умывальником делается порядка 20 – 25 см. На маленькие угловые раковины рассчитывать не стоит, они годятся только для того, чтобы слегка ополоснуть руки, нормально умыться над ними невозможно;
- Между унитазом и раковиной оставляется от 25 см;
- Расстояние перед умывальником, закрепленным на прямой стене, составляет 70 см. Если же раковина базируется в нише, то перед ней должно быть минимум 95 см.
Пол
Последнее по порядку, но не по значению, из того о чём мы с вами поговорим будет пол. Здесь как и в предыдущем случае следует принять идею о том, что покрытие должно хорошо работать и быть надёжным в любой ситуации.
Несмотря на массу вариантов, предлагаемых нам на рынках или в хозяйственных магазинах назойливыми продавцами, устремить взор следует в сторону следующего:
- Керамическая плитка;
- Влагостойкий ламинат;
- Наливной эпоксидный пол (весьма сложен в реализации).
Стоит также подумать о том, чтобы при необходимости подвести к полам в ванной отопление, дабы не застудить босые ноги и не подхватить простуду.

























































