Планировка комнат: раздельная или смежная
Если в одну из комнат можно пройти, только минуя другую, то эти комнаты являются смежными. Такая планировка подходит для семейной пары или одного человека, поскольку большую комнату можно использовать как гостиную, другую – как спальню. Кухня, как правило, очень маленькой площади, что доставляет определенные неудобства. Поэтому лучше ее объединить с гостиной.
Схема планировки двухкомнатной квартиры со смежными комнатами
Кухня совмещенная с гостиной в двухкомнатной квартире
Кухня с гостиной разделена небольшой перегородкой
Совмещённая кухня с гостиной с перегородкой в светлых тонах
Для семьи с детьми лучше иметь изолированные комнаты, поэтому можно продлить коридор, и переместить двери.
Для семьи с детьми лучше иметь изолированные комнаты
Самая неудачная планировка – «вагончик», но ее легко трансформировать, оборудовав гардеробную или кладовую между комнатами.
Планировка «вагончик»
Раздельная планировка подразумевает две изолированных комнаты с отдельными входами.
Раздельная планировка с двумя изолированными комнатами с отдельными входами
При любой планировке можно объединить комнату с лоджией для увеличения площади.
Объединённая гостиная с лоджией
Удачное совмещение гостиной с лоджией
Лоджия в качестве дополнительной комнаты
Варианты планировки в зависимости от помещения
Планировка 4-х комнатной квартиры разнится от большинства других различными помещениями и их количеством. Да и комнаты бывают отдельными или проходными, что не часто встретишь в двухкомнатных квартирах.

Дизайн четырехкомнатной квартиры в панельном доме
Существуют различные вариации плана квартир. Но основным для панельного дома является вариант с тремя отдельными спальнями, которые объединяет коридор. Как правило, одна из комнат больше других.

В хрущевке
Хрущевки как известно представляют собой маленькие комнаты, а именно: узкие прохожие, крошечных размеров кухни, ванная комната и туалет совмещены и низкие потолки. Однако и четырехкомнатные квартиры тоже встречаются.

Современному человеку вряд ли будет по душе 4 комнатная хрущевка, однако и ее обустроить будет интересно. 4 комнатная хрущевка, планировка которой будет представлена на фото.
В сталинке
Совершенно иначе обстоят дела в сталинских квартирах. Высокие потолки, более 3-х метров, широкие коридоры, раздельные туалетные и ванные комнаты, внушительных размеров кухни. А благодаря тому, что дома строились из кирпича они имеют хорошую звукоизоляцию и лучшую теплозащиту, чем панельные. Вот, где разгуляться можно дизайнеру.

Создание акцентов
В дизайне современных двухкомнатных квартир одни из основных условий является создание акцентов в интерьере. Для гостиной в качестве акцентов можно использовать следующие идеи:
Устройство стены с оригинальной подсветкой. Такой ход украсит даже самую миниатюрную комнатку. Но не переусердствуйте, ведь акцент уместен только на одной стене.
Отделка одной стены «под кирпичную кладку», тоже относится к разряду дизайнерских уловок и превосходно подходит ко многим стилям.
Отделка акцентной стены обоями ярких цветов, фактурной штукатуркой или декоративными панелями «под натуральное дерево», стеновыми панелями 3D или кирпичной кладкой, используемой для декора.
Оформление дизайна в двухкомнатной квартире: от барокко до Востока в едином пространстве
В современной мешанине стилей трудно выбрать тот дизайн двухкомнатной квартиры, который станет верным с функциональной точки зрения вкупе с основными «признаками» того или иного направления.
Никто не знает наверняка, понравится ли в итоге то, что станет конечным продуктом, будет ли вся квартира выдержана в едином оформлении и останется ли в тренде на несколько лет вперёд. Поможет сделать правильный выбор наша подборка популярных стилей интерьера.
Выполнить эти замысловатые, но решаемые задачи взялась Татьяна Вакуева – архитектор и автор проектов. Ей удалось собрать в небольшой двушке 50-х годов (78 кв. метра) для молодожёнов сразу несколько архитектурных и дизайнерских составляющих – от Прованса до Востока, затронув чуть-чуть Классики и немного барокко.
Задачей стояло предусмотреть место для детской комнаты (детей у молодой пары ещё не было). С нею Татьяна справилась.

Детская
Комнате для малыша выделено отдельное пространство. Высота потолков позволила создать антресоль для второго спального места с имитацией 2-го этажа.
В детской выдержан стиль Прованс с нотками американского Кантри: натуральные материалы отделки, сосновые брус и вагонка, обои со стилизованным растительным принтом с разноцветными белками, много белого цвета и голубого текстиля. В итоге получился стилизованный чердак. Теперь это комната маленького мальчика


Прихожая
Когда основная цель достигнута, можно перейти к описанию квартиры по порядку. Это прихожая. Она выдержана в классическом стиле с добавлением эклектики: пол выложен «больничной» чёрно-белой плиткой, на стене повесили зеркало в виде английского сводчатого окна со ставнями, лепнина на потолке – нетронутый декор со дня постройки дома.
Сундук обрёл второе дыхание, заново обтянут и несёт двойную нагрузку – декоративную и стал ящиком для вещей.

Гостиная плюс кухня: тема усадьбы
Они совмещены между собой, поэтому здесь много простора. Диван стал центром, вокруг которого «вертится» остальная обстановка, и это помимо рабочей кухонной поверхности.
Лепнина по периметру стен, гладкий потолок кипенно-белого оттенка – классические приёмы старинных усадеб. Барные люстры гармонично настаивают на том, что за окном XXI век, а лёгкий текстиль и домашние фотографии – уютные акценты кухонного пространства.
Кухонный гарнитур выполнен из натурального дерева с белым лаком, а стена имеет каминную консоль.


Спальня в духе усадебного ампира
Интерьер спальни – олицетворение пушкинских времён (ампир). Стеновые панели декорированы рельефным штапиком и выкрашены в зелёную «оливу». Лаконичные бра и люстра подчёркивают аристократический стиль.
Изголовье кровати помпезно возвышается над площадью кровати, щедро покрытой текстильными покрывалами. Прикроватная тумбочка – винтажное изделие под эпоху позднего Барокко.


На противоположной стене разместилось напольное зеркало, прислонённое к стене.

Ванная: Восток и Бидермейер
Ванная комната разделена на две зоны – с ванной, обрамлённой керамической плиткой с восточным паттерном и на часть с консолью под умывальник из ореха со столешницей, имитирующей мрамор.
Здесь дизайн выполнен в строгом настроении Бидермейер – основательная консоль, винная чистая поверхность стены, минимум отделки.


Популярные стили
Подбор дизайна для хрущевки (эконом-вариант или дорогой ремонт) – задача не из легких, потому как нужно принять во внимание все минусы малогабаритной квартиры: тесноту, низкие потолки, неудобную планировку. Многие задаются вопросом, какие же стили лучше всего использовать в таких квартирах
Наиболее органичными и отвечающими современным требованиям являются следующие:
- хай-тэк;
- ампир;
- классический;
- кантри;
- скандинавский.
Хай-тек
Его отличительная черта – использование технологических новинок, высокая практичность и лаконичный дизайн. При оформлении квартиры в этом стиле используются пластик, металл и стекло. Преобладают однотонные и неяркие цвета: белый, серый, черный и бежевый.
В таком интерьере принято делать навесные потолки, но в хрущевках они будут неуместны из-за низкого потолка.
Рекомендуется сделать цветовой акцент на одной из стен. Ее можно отделать панелями из пластика, камня, дерева и др. Подойдут и контрастные обои, но они не должны быть пестрыми.
Ампир
Полностью использовать этот стиль в дизайне интерьера не рекомендуется, т. к. для этого следует иметь большие комнаты, дверные и оконные проемы, высокие потолки. Но позаимствовать отдельные детали и элементы этого стиля будет не лишним. Это могут быть узоры на обивке мебели, фасадах, на одной из стен. Панель с помпезным орнаментом хорошо впишется в интерьер в стиле ампир.
Классический
Классический стиль является наиболее подходящим для хрущевки: деревянная мебель со вставками из природного камня, спокойные тона и текстильное оформление в одной цветовой гамме. Этот дизайн не утратит своей актуальности и привнесет в интерьер нотки уюта и тепла.
С коридоре и спальне рекомендуется разместить шкафы до потолка, цвет которых должен перекликаться с цветом стен. Они будут выглядеть органично и смогут вместить в себя много вещей. Наиболее подходящие оттенки:
- бежевый;
- белый;
- серый;
- оливковый;
- светло-коричневый.
Темные цвета подойдут для оформления мелких деталей:
- картинных рамок;
- шкафов и стеллажей;
- перил диванов и кресел.
Классический стиль подразумевает использование лепнины на потолке и стенах. Но в малометражной квартире такой прием будет неуместным. Можно использовать потолочный плинтус, но только при высоте потолка не менее 270 см.

Кантри
Этот стиль придаст уюта и комфорта помещению, создаст расслабляющую домашнюю атмосферу. В нем должны присутствовать только натуральные цвета и приглушенные оттенки: коричневый, оливковый, желтый, зеленый, голубой и т. п. Можно использовать яркие цветовые акценты в небольшом количестве.
Одним из разновидностей этого стиля является французский прованс. В нем присутствуют элементы старины. Можно отдать предпочтение американскому варианту с комфортной мебелью и присутствием природных материалов в декоре.
Скандинавский
При оформлении дизайна хрущевки (2 комнаты) в скандинавском стиле, следует отдать предпочтение светлым тонам: белому, нежно-голубому, светло-розовому, бежевому, коричневатому и серому. Контрастные цвета используются в отдельных элементах декора – аксессуарах, текстиле и т. п.
Выбор стилистики
«Неопределенный» стиль, ретро советской эпохи или полная эклектика сегодня не в моде. Гораздо интереснее смотрятся дизайнерские проекты квартир с двухкомнатной планировкой, где стиль вполне узнаваем.

Сейчас существует масса программ для визуализации
При выборе дизайна интерьера важно учесть комфорт

Дизайн квартиры в современном стиле
При выборе той или иной культурной традиции, отраженной в интерьере, важно учитывать, насколько комфортно будут себя чувствовать в такой обстановке все члены семьи. Сегодня есть специальные программы визуализации дизайна интерьера, с помощью которых можно смоделировать любую идею
Самые популярные стили:
- минимализм (классический и современный, японский и скандинавский);
- кантри (прованский стиль, шале, ранчо, русский терем, украинская хата);
- этнические стили (африканский, восточный, индийский, марокканский);
- ретро (винтаж, гранж; шебби-шик);
- классика и исторические стили;
- фьюжн;
- урбанизм (лофт, хай-тек, техно, футуризм);
Очень хорошо когда комната будет наполняться естественным светом

Создать нужный дизайн квартиры несложно, его можно заказать у специалистов
Услугу по визуализации дизайн-проекта любой двухкомнатной квартиры предлагают не только в дорогом дизайнерском ателье, но и частные специалисты, освоившие программы на любительском уровне. Но и без них можно обойтись, рассматривая иллюстрации фотогалереи, чтобы понять, что нравится больше всего.
10 простых и эффективных приёмов зонирования комнат
Предметы, которые разделяют прямоугольную комнату на зоны, могут быть мобильными и стационарными. Мобильные перегородки могут перемешаться и трансформироваться, временно увеличить зону гостиной. Это:
- Ширма.
- Стеллаж на роликах.
- Диван на роликах.
- Складные подиумы.
Красивая и функциональная перегородкаИсточник sovkalmykia.ru/svajjny
Ширма
Ширма позволяет быстро закрыть спальную зону от нежелательных взглядов визитёров. Она может быть из дерева в классическом стиле, из ткани с необычным принтом на лёгкой металлической раме. Из листов полупрозрачного пластика или с секцией из зеркала. Количество секций зависит от размеров комнаты. Главное, что бы в сложенном виде ширма не выглядела чужеродным предметом.
Стеллаж на роликах
Стеллаж должен быть устойчивым. Его высота не более полутора метров. Он может быть с глухим задником или сквозными полками. Может стоять у стены в обычное время, использоваться как перегородка на вечеринке. Может разделять комнату пополам и переместиться в спальную зону перед приходом гостей, освободить место, чтобы раздвинуть складной стол.
Диван на роликах
Диван на роликах или колёсиках легко развернуть из спальной зоны к зоне гостиной.
Искусственная ниша из штор и стеллажаИсточник bezkovrov.com
Складной подиум
Интересный вариант для комнаты в стиле лофт – подиум из паллет. Паллеты у изголовья служат перегородкой. Когда надо увеличить зону гостиной, убирается постель. Паллеты складываются как стол или барная стойка.
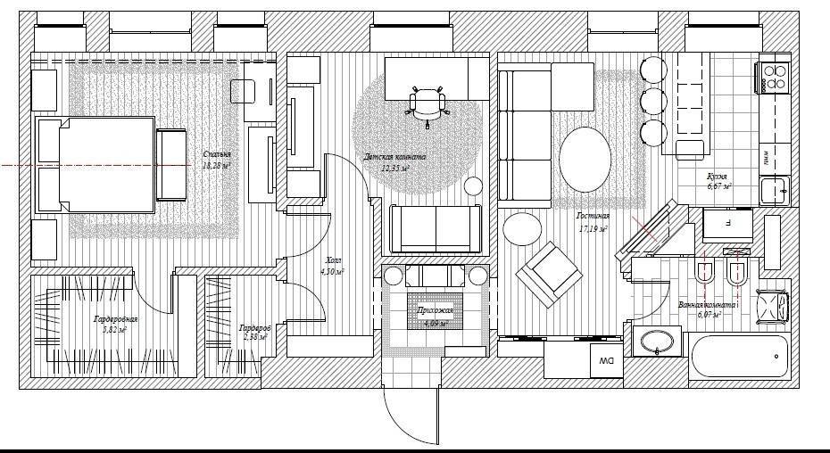
Особенности планировки 4-х комнатной квартиры
Большая квартира – большие возможности. Четырехкомнатная квартира станет прекрасным выбором для большой семьи, ведь в такой квартире точно всем найдется место.

Когда речь заходит о планировке большой квартиры, то следует учесть два основных пункта:
- Максимальная изоляция жилых комнат друг от друга.
- Пространство квартиры максимально комфортно и свободно.
Два вроде бы противоречивых правила следуют неотлучно друг от друга.

В разных ситуациях холл может быть использован как вторая гостиная или вообще, как комната
Особое внимание следует уделить ванной комнате и туалету. В некоторых больших квартирах предусмотрено две туалетные комнаты
Одна из них совмещается с ванной. Это вызывает определенные удобства, например, утром, когда вся семья собирается по своим местам.
Сама планировка квартиры должна полностью устраивать, так как речь идет о жилище на долгие годы, а может и на всю жизнь.

Варианты перепланировки двухкомнатных квартир для семьи с ребенком
Владельцы двухкомнатных квартир при наличии нескольких детей всегда страдают от нехватки места. Сложность возникает из-за неправильной организации. Расширить территорию можно без пыли и грязи с помощью актуальных идей, которые собрали дизайнеры. На фото можно ознакомиться с вариантами “до” и “после”.
В интерьере одной комнаты необходимо создать пространство, комфортное для каждого члена семьи
Детский участок должен быть максимально обособленным, чтобы ребенок играя не мешал родителям
Как можно сделать детскую для разнополых малышей:
- До 7 лет можно легко превратить одну комнату в домашний детский сад. В этом возрасте, малыши еще не замечают различий между друг другом, поэтому можно ограничиться раздельными спальными местами. Общая территория может быть оборудована спортивной площадкой, местом для творчества и т.д.
- Произвести разделение комнаты за счет использования мебели и декора.
- Зонирование с помощью текстур и оттенков.
У малышей часто с возрастом меняются вкусы. Оттенок, который нравится одному, может вызывать негатив у другого. Поэтому родители должны подобрать нейтральный, чтобы комната устраивала их обоих. Не менее эффективным инструментом в зонировании является – модульная мебель. Она позволит менять пространство “как конструктор”, что положительно скажется на семейном бюджете. Дополнительно можно рассмотреть варианты перепланировки двушки в трешку в новых домах.
Важно тщательно продумать расстановку мебели, чтобы пространство не вышло перегруженным
Современные квартиры отличаются своей площадью. Застройщики все чаще делают комнаты большими, и сегодня редко можно встретить двухкомнатную квартиру менее 60 квадратных метров. Однако для жителей хрущевок, сталинок такой возможности нет. Зонировать пространство с помощью возведения перегородок бессмысленно. Территория критически сузится, что будет давить на психику детей. Поэтому единственным вариантом остается правильный дизайн проект, в котором профессионал сможет предложить наиболее оптимальные варианты для сохранения не только детской индивидуальности, но и комфорта.
Особенности оформления интерьера
В основе лежит порядок предметов для создания гармоничного пространства в доме. Хотя это звучит очень просто, существуют основные характеристики и концепции для достижения этой цели, а также широкий спектр возможностей.
Свет
Качественное освещение считается неотъемлемой частью любого пространства, независимо от того, являются ли его источники естественными, искусственными или комбинированными.
Совет от эксперта Татьяна Набокова Дизайнер-интерьера с 2010 года
Выполнила более 100 дизайн-проектов для квартир и загородной недвижимости Выбирая освещение для своей комнаты, важно подумать о таких факторах, как оттенок (холодный синий или теплый желтый), интенсивность (яркий пищи или мягкий для чтения)
Продумывая дизайн маленькой двухкомнатной квартиры важно предусмотреть этот вопрос
Мебель
Предметы мебели и скульптуры могут принимать органические формы (естественные и неправильные, с пышными или абстрактными формами) и геометрические формы (с резкими искусственными линиями и краями, такими как квадраты или треугольники). Стиль и формы мебели должны гармонично смотреться в интерьере.
Зеркала
Зеркало может просто передать отражение хорошего сектора дома. Его особенность в том, что у него есть безграничные возможности с точки зрения стиля, расположения и размера. Необходимо лишь соблюдать некоторые основные правила.
Размер, расположение и внешний вид — вот основные моменты, которые важно учитывать:
Размер. В просторных помещениях зеркала могут быть большего размера.
Место размещения. Лучшее расположение — возле окон, или направленное на растение, скульптуру или орнамент. Не стоит вешать зеркало перед гладкой стеной, потому что его достоинства аннулируются.
Внешний вид
Хорошее зеркало может привлечь внимание, поэтому оно хорошо работает в гостиных. Ресурс может представлять собой несколько неравных копий, размещенных в виде фрески
Цвет, наличие или отсутствие рамки и толщина также являются проблемами дизайна.
Оптимальные варианты меблировки
Правильная меблировка двухкомнатной квартиры хрущевок обеспечит комфорт проживания, сделав план обстановки более функциональным. Цвет, форма мебели должны гармонировать с общей стилистической идеей интерьера, соответствуя цветовому решению отделки. Проверенные советы основываются на основных стилистических приемах:
- минимальное количество элементов мебели;
- применение модульных конструкций;
- легкие, складные варианты;
- стеклянные предметы, или зеркальные вставки;
- компактная угловая и подвесная мебель.
Продажа современных барных стоек, оригинальных ширм и перегородок поможет разделить пространство, не утяжеляя его. Мебель должна быть максимально практичной и функциональной. Дизайн и варианты мебельного оформления как на фото при совмещении жилых помещений с кухней, или проходной план, предусматривают выбор предметов с устойчивой обивкой, или поверхностью, устойчивой к влаге, различным воздействиям. Следует подбирать элементы, учитывая легкость чистки.
Варианты зонирования квартиры
Разместить все необходимое для жизни в двух комнатах иногда бывает непросто. Особенно это касается семей с детьми, где каждому необходимо выделить личное пространство, а помимо этого – еще и найти место для хранения многочисленных вещей. В таких случаях просто необходима оптимизация, направленная на эффективное использование каждого квадратного метра.
Перепланировка – решение, способное кардинально преобразить стандартную квартиру. Если есть возможность разобрать одну или несколько внутренних перегородок – это большая удача. Избавившись от глухих стен, можно заменить их прозрачными стеклянными или пластиковыми панелями от пола до потолка, раздвигающимися по принципу дверей-купе – так в доме станет больше света и воздуха.
С функцией разделителя между кухней и гостиной легко справится барная стойка, одновременно выполняющая роль обеденного стола; сама обеденная зона со столом и креслами; большой диван или шкаф. Объединение таких помещений, как гостиная и лоджия, ванная и часть коридора, кухня и кладовая позволяет увеличить полезную площадь, благодаря чему в квартире появляется больше места.
Хотя в последнее время большей популярностью пользуются лишенные перегородок студии, для многих остается актуальным вопрос индивидуального, закрытого от посторонних глаз пространства. Для разграничения двух комнат на меньшие зоны стоит пользоваться особенностями мебели – высокий стеллаж или встраиваемый шкаф-купе с проходом посередине вполне могут заменить еще одну внутреннюю стену.


Дизайн двухкомнатной хрущевки
Квартиры, жить в которых без перепланировки – это изысканный вид пытки: маленькие тесные комнаты с низкими давящими потолками, тесная прихожая, склеп-санузел – для первоначальной планировки в хрущевке трудно подобрать соответствующие эпитеты. Коррекция жилой площади значительно упрощается тем, что в подавляющем большинстве случаев внутренние перегородки – не несущие, плюс изготовлены из кирпича, что существенно упрощает демонтаж.
Для зонирования небольшой квартиры можно использовать стеклянные перегородки
Современный классический стиль в оформлении интерьера двухкомнатной квартиры
Разноцветное оформление стен – один из способов зонирования помещения
Дизайн двухкомнатной квартиры хрущевки обычно предусматривает два самых популярных типа перепланировки:
демонтаж стены, разделяющей комнату и кухню, получение кухни-столовой-гостиной и спальни;
Объединенный дизайн двухкомнатной квартиры превращает гостиную, кухню и столовую в одну зону
демонтаж межкомнатной перегородки и получение квартиры-студии. Как вариант демонтируют обе межкомнатные перегородки и уменьшают площадь спальни, установив гипсокартонную стену. Или просто зонируют пространство, выделив спальню при помощи ширм.
В квартире-студии нет стен, их роль выполняют перегородки и стеллажи
Компактная, но очень удобная планировка двухкомнатной квартиры
Декоративная ширма для отделения небольшой спальной зоны
Красивый интерьер квартиры-студии в стиле лофт
Немного площади можно добавить, присоединив к комнате балкон. Практически всегда перепланировка затрагивает санузел, который становится совмещенным – снос стены позволяет получить порядка 2 кв. м дополнительной площади. Еще один вариант – «прирезать» площади за счет части дизайна коридора.
Балкон, объединенный со спальней
Если объединить балкон с комнатой, можно обустроить отличное пространство для приема гостей
Брежневка
Жить стало лучше, жить стало просторнее – как на кухне (она увеличилась до 7-8 кв. м), так и в комнатах. Потолки тоже подросли, но незначительно. А вот возможности перепланировки здесь минимальны, поскольку практически все стены несущие, но можно добавить немного площади за счет коридора и объединить санузел.
Размер и дизайн кухни-столовой увеличен за счет присоединения коридора
Объединенный дизайн ванной и туалета – просторно и функционально. Освещение в ванной распределено над зоной, где находится сама ванна
Комфортабельная квартира-студия в серых тонах
Прекрасная гостиная двухкомнатной квартиры с остеклением в пол
Сталинка
Многоквартирные дома, возводившиеся в 40-50 годах минувшего столетия, воплощенная мечта о качественном жилье, характеристикам которого можно позавидовать даже сегодня: теряющиеся где-то в непроглядной высоте потолки, крупногабаритные комнаты, достаточно часто оригинальное расположение комнат. Особенностью планировки этих квартир является отсутствие несущих стен внутри квартиры – это открывает неограниченные просторы для перепланировки. Метраж комнат позволяет без особых проблем и сильных ограничений получить из двухкомнатной квартиры трехкомнатную. Или, убрав все стены, обустроить просторную квартиру-студию, которую можно задействовать как небольшой выставочный зал. Впрочем, самый распространенный вариант перепланировки сталинки – объединение кухни, смежной комнаты и коридора.
Квартиры-сталинки – отличная возможность реализовать свои дизайнерские идеи
Высокий потолок сталинки позволит организовать в детской двухэтажную игровую конструкцию
Отсутствие несущих стен позволяет объединить комнаты в единое функциональное пространство
Гипсокартонная перегородка для разделения двух зон
Варианты перепланировки
Существуют различные варианты перепланировки, в зависимости от особенностей помещения и потребностей его владельцев.
Разделение смежных комнат
Разделить смежные комнаты можно только за счет продления коридора и уменьшения площади одной из них. В большинстве случаев межкомнатные перегородки не являются несущими стенами, поэтому их можно демонтировать. Но предварительно этот вопрос необходимо согласовать с БТИ.
Увеличение зала за счет уменьшения площади спальни
Увеличение зала в двухкомнатной картире делается за счет перемещения межкомнатной перегородки в сторону меньшего помещения. Следует рассчитать все параметры, чтобы кровать и другие предметы мебели поместились в новой спальне.
Совмещение зала с кухней
Хрущевки отличаются маленькими кухнями, в которых тяжело разместить все необходимые предметы мебели и технику. С целью расширения пространства владельцы объединяют гостиную и кухню, создавая просторную студию. Такой дизайн двухкомнатной хрущевки пользуется популярностью. При этом смежную комнату можно расширить, объединив ее с балконом, а кухню визуально отделить от гостиной при помощи барной стойки.
Объединение кухни и балкона
Если к кухне примыкает балкон, эти 2 помещения можно объединить, расширив таким образом функциональную площадь. На территории балкона можно разместить обеденную зону, тем самым освободив место на кухне для расширения площади рабочих поверхностей, расстановки мебели и техники.
Совмещение ванной с туалетом
Совмещение туалета с ванной может иметь 2 цели:
- Объединить пространство этих 2 помещений для более удобного размещения в нем сантехники и других предметов.
- Увеличение площади коридора за счет такого объединения.
Изменения в санузлах
Правила, которых следует придерживаться при такой перепланировке:
- санузел можно расширить только за счет кладовки или коридора, а не жилых комнат или кухни;
- нельзя перемещать кухню туда, где была ванная, а туалет – в комнату;
- недопустимо сносить несущие стены, но в них можно сделать дверной проем.
Избавляемся от узких коридоров и глухих прихожих
Прихожие в хрущевках имеют 3 недостатка:
- Маленькая площадь.
- Узкий и длинный коридор.
- Неудобная Г-образная планировка.
Увеличить прихожую можно за счет зала или ванной комнаты. Чаще всего это необходимо для того, чтобы разместить в коридоре шкаф-купе. В стандартный коридор не поместиться даже пенал, т. к. двери санузла открываются в тамбур. Оптимальный вариант – расширить прихожую.
Современный дизайн квартиры в хрущевке предусматривает снос перегородки между коридором и гостиной. Таким образом, исчезнет глухой коридор и пространство расширится.
Демонтаж антресолей, кладовых, ниш, встроенных шкафов
Часто жильцы прибегают к сносу кладовых, антресолей и ниш для увеличения свободного пространства. Вопросы демонтажа таких конструкций должны быть согласованы с жилищной инспекцией.
Нюанс состоит в том, что в подобных сооружениях 1 или 2 стенки примыкают к несущим стенам
Зонирование кухни – гостиной
При объединении гостиной и кухни следует визуально зонировать пространство. Рабочее пространство следует отделить от обеденного. Можно увеличить площадь рабочей зоны и одновременно отделить гостиную от кухни, соорудив барную стойку, которая может заменить обеденный стол.
Разделить эти 2 функциональных пространства можно с помощью дивана. Один из вариантов – сделать небольшую декоративную перегородку между кухней и залом, расположив диван спинкой к кухне. В качестве такой перегородки можно использовать стеллаж с полками от пола до потолка.
Можно зонировать пространство без использования перегородок. В кухонной части лучше всего положить напольную плитку, а в гостиной – линолеум или ламинат. Такое оформление пола поможет зрительно разделить эти зоны.
Зонирование жилой комнаты
Пространство можно разделить при помощи тонкой перегородки, скрыв при этом кровать из поля зрения. Разделить комнату на зоны можно при помощи нитяных или стандартных штор, раздвижных дверей.
В непосредственной близости к двери можно поставить маленький диван и столик. Организовать место для хранения вещей можно в подвесных полках, сэкономив пространство. Телевизор в маленьких помещениях лучше располагать на стене.
























































