Оформление и содержание
Требования к составу проектной документации для согласования перепланировки квартиры изложены в Приложении 3 Постановления Правительства Москвы №508-ПП от 25 октября 2011 г (с изменениями на 13 февраля 2018 г).
Состав проекта зависит от сложности планируемых работ. Но обязательными пунктами являются:
Текстовая часть
Титульный лист
Данный лист содержит адрес объекта, шифр проекта, номер договора и дату изготовления. Также указываются реквизиты организации, разработавшей проект, ставятся подписи ответственных лиц и Заказчика.
Содержание тома
Содержание проекта оформляется в виде таблицы с указанием сквозной нумерации листов.
Запись ГИПа
Обязательство главного инженера проекта о соответствии проектных решений действующим нормам, заверенное подписью и печатью.
Пояснительная записка
Первым листом пояснительной записки является её содержание. Пояснительная записка включает в себя краткую информацию об объекте: (адрес, этаж, серия дома, год постройки и т.д.), а также описание принятых в проекте решений.
Графическая часть
Местоположение объекта
Фрагмент карты с указанием округа и района, в котором расположен объект проектирования.
Чертёж, отражающий фактическую планировку квартиры. Выполняется на основании документации БТИ и визуально-инструментального обследования. Чертёж дополняется экспликацией, содержащей наименования и площади помещений согласно техническому паспорту БТИ.
План демонтируемых конструкций и оборудования
Чертёж, на котором синим цветом показываются сносимые и/ или переносимые перегородки, проёмы, сантехнические приборы, плиты и пр.
План монтируемых конструкций и оборудования
Чертёж, на котором красным цветом показываются возводимые и/ или переносимые перегородки, проёмы, сантехнические приборы, плиты и пр.
Чертёж, отражающий планировку квартиры после реализации проектных решений. Чертёж дополняется экспликацией, содержащей наименования и площади помещений, с пометкой об уточнении их после обмеров техником БТИ.
План и экспликация полов
Чертёж с обозначением покрытия полов в помещениях. Чертёж дополняется таблицей с эскизами конструкций полов и описанием их состава. В жилых зданиях на плиту перекрытия обязательно должен быть уложен слой звукоизоляции. В помещениях санузла и ванной должна быть сделана гидроизоляция. Устройство звукоизоляции и гидроизоляции полов подтверждается актами на скрытые работы.
Схема гидроизоляции «мокрых» зон
Чертёж, содержащий подробное описание работ по гидроизоляции ограждающих конструкций санузла и ванной.
Чертёж с обозначением трубопроводов горячего и холодного водоснабжения, канализации, вентиляции, отопления, газоснабжения. Чертёж дополняется пространственными схемами расположения инженерного оборудования.
Дополнительные документы
Теплотехнический расчёт
Выполняется при демонтаже оконно-балконного блока и подоконной части наружной стены с последующей установкой «французских» дверей. Производится согласно требованиям СП 50.13330.2012. Содержит вывод о том, что в результате изменения формы оконного проема суммарные теплопотери новых конструкций не превышают соответствующие показатели существующих.
Схема усиления и конструктивные чертежи
Выполняется при затрагивании несущих конструкций (например, устройство проема в несущей стене или перекрытии). Содержит общий вид проема и рамы его усиления, деталировку узлов, а также указания и порядок производства работ. Устройство усиления проёма подтверждается актом на скрытые работы.
Выполняется при переносе кухни, например, на площадь коридора. Необходим для подтверждения нормативных параметров естественной освещённости помещения.
Однолинейная схема электроснабжения
Выполняется при замене газовой плиты на электрическую с увеличением выделенной на квартиру мощности.
Фотофиксация и фотомонтаж
Выполняется при затрагивании фасада здания (устройство/ закладывание дверных и оконных проёмов в наружных стенах, монтаж вентиляционных коробов, устройство крылец и козырьков и пр.). Данный раздел подлежит согласованию с Москомархитектурой.
Варианты перепланировки квартир различной площади
Среди самых радикальных решений расширения жилплощади стоит выделить создание квартиры студии. Для этого все стены, которые не являются несущими (за исключением стен санузла), сносят и заменяют легкими полупрозрачными перегородками. Такой вариант отлично подходит, если в квартире проживает один человек или молодая пара.
Рассмотрим различные варианты перепланировки трех-, двух- и однокомнатной квартиры.
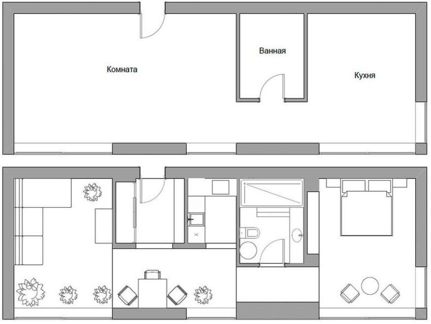
Перепланировка трехкомнатной квартиры в хрущевке
Перепланировка трехкомнатной квартиры в панельном доме займет у вас немало сил и времени. Поэтому перед тем как начинать монтаж, разработайте максимально детальный план и согласуйте его с соответствующими службами. Это поможет вам избежать лишних хлопот и сэкономить на стоимости перепланировки квартиры.

Трехкомнатная квартира до и после перепланировки
Но что, казалось бы, можно улучшать в квартире, где есть целых 3 комнаты? Часто бывает, что проживая вдвоем или втроем, семья не нуждается в таком количестве комнат, а вот размеры кухни оставляют желать лучшего. В таком случае производят (как видно на многочисленных фото) перепланировку 3-х комнатной квартиры хрущевки, совмещая смежную жилую комнату с кухней. Примеры удачных решений для квартир этого типа вы можете увидеть на фото перепланировки 3-комнатной квартиры 64 кв. м или другой площади.
В процессе перепланировки квартиры, объединение кухни и комнаты в одну зону происходит практически безболезненно. Все, что вам для этого необходимо – сделать согласование перепланировки квартиры самостоятельно.
Особое внимание стоит уделить перепланировке 3-х комнатной квартиры серии П-44Т. В квартире такого типа есть лоджия, которая может отлично способствовать расширению пространства

Совмещение кухни и гостиной позволило получить просторную обеденную зону
Варианты перепланировки двухкомнатной квартиры
Наиболее часто встречающиеся в интернете – фото перепланировки 2-х комнатной квартиры хрущевки, демонстрирующие полное или частичное объединение всего пространства. Однако для семей с детьми этот вариант практически не рассматривается, поскольку перепланировка двухкомнатной квартиры в хрущевке призвана повысить уровень комфорта, а не наоборот.
В квартире, где 2 комнаты смежные, вариантов перепланировки (фото хрущевок хорошо демонстрирует такой тип квартир), не так уж и много. Здесь нужно подумать о том, есть ли вариант безболезненно разделить комнаты с помощью, например, небольшого холла или гардеробной, или же придется кардинально все менять. В любом случае вам придется пожертвовать в процессе обустройства частью площади одной из комнат. Но, в данном случае, оно того стоит.
Одним из удачных вариантов перепланировки 2-х комнатной квартиры является разделение большой комнаты на две маленьких. Это отличное решение для семьи с двумя разнополыми детьми, у каждого из которых появится возможность иметь свою отдельную комнату. Вторая комната в этом случае отводится под спальню родителей. Кухне предстоит выполнять роль и гостиной, поэтому ее целесообразно объединить с лоджией или балконом.

Пример перепланировки двухкомнатной квартиры 60 кв.м в трехкомнатную
Перед тем как принять окончательное решение, просмотрите как можно больше фото перепланировки 2 х комнатной квартиры хрущевки, представленные в интернете.
Перепланировка однокомнатной квартиры в хрущевке
Как ни удивительно, но возможно сделать и перепланировку однокомнатной квартиры. Фото удачных решений доказывают целесообразность таких вложений. Вариантов перепланировки однокомнатной квартиры достаточно много, и все они направлены на визуальное и фактическое расширение пространства.
В зависимости от цели, которой вы добиваетесь, действовать можно в двух направлениях:
- перепланировка студии в однокомнатную квартиру;
- перепланировка однокомнатной квартиры в двухкомнатную.

Удачная перепланировки однокомнатной квартиры площадью 50 кв.м
Также бывает наоборот, когда хозяева хотят сделать из однокомнатной квартиры студию. В этом случае действовать нужно по стандартной схеме объединения кухни и комнаты. Образец проекта перепланировки квартиры такого типа несложно найти в интернете. Цена проекта перепланировки квартиры этим способом является самой низкой.
Если планировка вашей квартиры не совсем соответствует вашим пожеланиям, то это можно изменить. Достаточно собрать все необходимые документы и провести перепланировку. Конечно, это займет немало сил и времени, однако вы сможете расширить ту часть квартиры, которая наиболее востребована именно в вашей семье. А это, безусловно, положительно скажется на вашем комфорте проживания в ней.
Разрешение и отказ
Некоторые статьи ЖК определяют порядок, соблюдение которого требуется с целью выдачи разрешений о перепланировке. Среди данных норм существуют и те, которые содержат в себе основания, наличие которых влечет невозможность предоставления требуемого разрешения.
Рассмотрение документации, представленной в органы власти со стороны собственника, должно быть выполнено в срок, не превышающий 45 дней.
Основными поводами для отказа в предоставления разрешения, может стать несоответствие планируемых работ ряду стандартов и нормативов, применяемых при строительстве. Отказ также может быть обоснован невозможностью нарушения прав и интересов, которыми наделены третьи лица.
Как узаконить перепланировку квартиры самостоятельно
Для того чтобы своими силами получить разрешение на перепланировку жилья, необходимо пройти несколько обязательных этапов:
- получить разрешения в жилищной инспекции на проведение работ;
- составить новый план квартиры;
- провести все ремонтные работы, связанные с перепланировкой;
- пригласить и принять комиссию, состоящую из работников жилищной инспекции для проверки и регистрации произведенных изменений.

Проводить ремонтные работы можно только после получения соответствующего разрешения в БТИ
Как узаконить уже сделанную перепланировку квартиры
Если вы не хотите нести ответственность – незаконная перепланировка квартиры не для вас. Однако предположим, что изменения были произведены ранее, без вашего участия. Как оформить перепланировку квартиры самостоятельно? Рассмотрим порядок действий в этом случае.
Согласно законодательству РФ, а именно 4 части 29 статьи Жилищного Кодекса, уже проведенная перепланировка может быть зарегистрирована только через суд. Для этого необходимо предоставить следующие документы:
- документы, подтверждающие ваше право собственности;
- технический паспорт на квартиру (как новый, так и старый вариант);
- справку из санэпидемстанции;
- заключение о состоянии опорных конструкций (его можно получить в проектировочной организации, имеющей лицензию);
- заявление;
- заключение Госпожарнадзора о соответствии перепланировки всем противопожарным нормам.

Уже проведенную перепланировку можно узаконить только через суд
Чтобы подробнее узнать о порядке согласования перепланировки квартиры необходимо обратиться в Бюро Технической Инвентаризации. Специалисты подскажут, что нужно, чтобы правильно узаконить перепланировку квартиры, стоимость процедуры и какие документы необходимо подготовить. Вам понадобится предоставить свидетельство о собственности и технический паспорт на квартиру, на основании которых будет составлено заявление на получение нового техпаспорта.
Незарегистрированная перепланировка квартиры может повлечь за собой множество разнообразных последствий. В том числе это касается и перехода жилья от одного владельца к другому. И речь идет не только о сделке купли-продажи, но и об обмене, принятии в дар и наследовании. То есть в случае необходимости совершения любой операции с недвижимостью, реальная планировка квартиры должна совпадать с той, которая указана в документах. В противном случае предстоит длительное разбирательство и переоформление.
Еще один случай, препятствующий полноценному использованию своих прав как собственника квартиры – изменение границ жилплощади. Это может быть сделано путем частичного присоединения лестничной клетки. Согласно законодательству, любое изменение установленных границ влечет за собой признание существующих документов недействительными. Так что вполне вероятно, что вам придется доказывать свое право собственности в суде, если расширение жилплощади проводилось без разрешения соответствующих организаций.

Вывоз строительного мусора регулируется законодательными нормами, за невыполнение которых предусмотрен штраф в размере от 3000 рублей
Как видно, изначально пойти законным путем намного проще, чем после оформлять уже произведенную перепланировку. Цена проекта квартиры для согласования также будет ниже, если делать все своевременно и последовательно.
Сколько стоит перепланировка квартиры
Прежде чем начинать изменения своей жилплощади необходимо выяснить, сколько стоит перепланировка в квартире. БТИ предоставляют целый ряд платных услуг, обойтись без которых никак не удастся. Стоимость оформления документов перепланировки квартиры вполне приемлемая – около 5 тыс. рублей. Полная стоимость проекта перепланировки квартиры может составить от 20 до 100 тыс. рублей.
Ниже приведен список расходов для самостоятельного согласования перепланировки квартиры:
- оплата нового технического паспорта (стоимость согласования перепланировки квартиры во многом зависит от региона вашего проживания и площади квартиры);
- пошлина государству за получение нового кадастрового паспорта;
- расходы, связанные с проведение судебных процессов (если оформляется уже осуществленная перепланировка): пошлина суду и при необходимости – оплата услуг юриста;
- составление и утверждение нового проекта квартиры, который выдает лицензированная организация.

Стоимость перепланировки квартиры может составлять от 5 до 100 тыс. рублей
Перепланировка или переустройство? Что считается перепланировкой?
Чтобы лучше разобраться в вопросе, что такое «перепланировка», а также что такое «переустройство», нужно обратиться к Статье 25 Жилищного Кодекса. Переустройство – это установка, замена или перенос инженерных сетей, санитарно-технического, электрического или другого оборудования, требующие внесения изменения в технический паспорт жилого помещения. Что же является перепланировкой и какие работы к ней не относятся? Перепланировка — это действия, предусмотренные сводом правил Жилищного Кодекса Российской Федерации, которые проводятся в жилых помещениях зданий с изменением месторасположения или размеров помещений, их функционального назначения и такие действия требуют внесения изменений в технический паспорт жилого помещения. В самом слове “перепланировка” заложен смысл действия – изменение плана помещения. Корректировка планировочных очертаний комнат, перенос проемов дверей, объединение жилых зон, расширение или дробление комнат – всё это, в полной мере относится к перепланировке.
В перепланировку частично или полностью могут входить следующие работы:
- Расширение площади кухни за счет других помещений;
- Организация дополнительных помещений под ванные комнаты и санузлы, а также их объединение;
- Увеличение жилплощади за счет вспомогательных и прилегающих помещений;
- Перенос, монтаж или демонтаж дверных и оконных проемов;
- Разбор и перенос перегородок, в том числе и не являющихся несущими.
Если ваш ремонт подразумевает реализацию какого-либо из приведенных выше пунктов, то вам обязательно потребуется разрешение на проведение подобных работ от государственных органов.

Согласование требуется в следующих случаях:
– Изменение изначальных контуров жилого помещения с переносом инженерного оборудования (сантехнических, газовых или нагревательных приборов);
– Перенос и/или организация новых дверных и оконных проемов, остекление балконов и лоджий;
– Внесение новых инженерно-технических решений, ранее не предусмотренных проектом (приточно-вытяжные системы вентиляции, организация дымоходных каминов и прочее).
Согласование НЕ требуется в следующих случаях:
– Косметический ремонт (оклейка обоев, перестилание напольных покрытий, разводка электрики и т.д.);
– Организация или демонтаж встроенной мебели или конструкций (например, антресолей или кладовок), которые не образуют собой полноценных площадей помещения, подлежащих учёту;
– Замена (не перенос) технического оборудования (например, бойлера или газового котла) на аналогичное по подходящим параметрам;
– Иные работы, относящиеся к ремонту (шумоизоляция, не уменьшающая площадь квартиры, теплый пол, натяжные потолки).
Итак, перепланировку можно осуществлять, если собственник заранее оформил все документы и согласовал её в соответствующих органах, при этом перепланировка не нарушает установленных строительных норм (СНиПов), соблюдаются права иных собственников соседних помещений и не нарушена безопасность конструкций дома. После получения разрешения на перепланировку в уполномоченном гос. органе (как правило, это БТИ), можно будет приступить к строительным работам. Без данного согласования перепланировка будет незаконной. За незаконную деятельность собственника могут привлечь к административному наказанию в виде штрафа, вплоть до исключительной меры – изъятия жилого помещения.
В случае переустройства проект переустройства не требуется, если проводятся малозначительности работы, которые относятся к не требующим согласования. В иных случаях, переустройство, равно как и перепланировка, относится к действиям, требующим одинакового рассмотрения и согласования.
Как узаконить самовольную перепланировку?
Несмотря на требование о предварительном согласовании перепланировки, на практике часто бывают случаи, когда узаконивание перепланировки происходит после завершения самих строительных работ. Такую перепланировку считают самовольной, т.е. совершенной без разрешения (согласования) уполномоченного органа. Есть два варианта узаконить такую перепланировку:
- административный;
- судебный.
За самовольную перепланировку предусмотрена ответственность, установленная законодательством.
Кроме штрафа в размере от 2000 до 2500 руб. ( КоАП РФ) и обязанности привести все в первоначальный вид, это может быть выселение из муниципальной квартиры и продажа квартиры с аукциона.
Административный порядок схож с обычным получением разрешения на перепланировку. Гражданин должен обратиться в жилищную инспекцию, узнать о необходимости согласования.
Если первый порядок не удалось реализовать, то можно обратиться в суд. Необходимо составить административное исковое заявление, где попросить суд о признании решения об отказе незаконным. Оно подается по месту жительства истца или по месту нахождения органа-ответчика. К заявлению прикладываются само решение об отказе, чеки об уплате госпошлины и документы, необходимые для перепланировки.
Суд назначит рассмотрение дела в течение месяца с момента обращения. Иногда суд назначает строительно-техническую экспертизу, которую оплатит ходатайствующая сторона. Задача истца (гражданина, подавшего исковое заявление) доказать, что перепланировка не нарушает прав и интересов других людей и соответствует строительным нормам и правилам.
После того как суд вынес решение, есть месяц для апелляционного обжалования. Если гражданин выигрывает дело, то ему необходимо обратиться в БТИ для приведения технических документов в соответствие с решением суда.
Проблемы с неузаконенной перепланировкой
Нельзя оставлять незаконную перепланировку. Рано или поздно собственника заставят заплатить штраф в размере до 2,5 тысяч рублей. Это сравнительно небольшая сумма, особенно на фоне потенциальных затрат на изменение планировки или узаконивание. Однако это лишь начало.
Вместе с предписанием заплатить штраф, владелец квартиры получает еще и требование привести жилье в соответствие с техпаспортом. Если этого не сделать, то в конечном итоге квартира будет арестована и продана с торгов. Почти всю вырученную сумму получит бывший собственник, однако она будет существенно ниже, чем рыночная, потому это очень невыгодно.
Провести узаконивание перепланировки квартиры без помощи опытного юриста очень сложно, а в некоторых случаях вообще невозможно. На бесплатной консультации квалифицированные специалисты расскажут об основных особенностях процедуры. Они также могут представлять интересы клиента как при подаче заявления в МФЦ, так и при решении проблемы через суд.
Для вас работают БЕСПЛАТНЫЕ КОНСУЛЬТАЦИИ! Если вы хотите решить именно вашу проблему, тогда
- опишите вашу ситуацию юристу в онлайн чат;
- напишите вопрос в форме ниже;
- позвоните Москва и Московская область
- позвоните Санкт-Петербург и область
(1 оценок, среднее: 5,00 из 5) Автор статьи
Наталья Фомичёва
Эксперт-юрист сайта. Стаж 10 лет. Наследственные дела. Семейные споры. Жилищное и земельное право.
Задать вопрос Рейтинг автора
Написано статей
513
-юристу БЕСПЛАТНО!
Напишите свой вопрос, наш юрист БЕСПЛАТНО подготовит ответ и перезвонит вам через 5 минут.
Отправляя данные Вы соглашаетесь с Согласием на обработку ПДн, Политикой обработки ПДн и Пользовательским соглашением
Полезная информация по теме
Документы для перепланировки квартиры в МФЦ
Нередко базовая планировка квартиры не соответствует требованиям или задумке ее…
Можно ли делать перепланировку в ипотечной квартире
Перепланировка квартиры – сложная задача сама по себе, особенно при…
Можно ли узаконить перепланировку после ремонта
Перепланировку квартиры рекомендуется согласовывать еще до начала выполнения работ, однако…
Ответственность и штраф за перепланировку квартиры или нежилого помещения без разрешения
Несогласованная (неузаконенная или самовольная) перепланировка жилых или нежилых помещений может…
Сколько стоит узаконить перепланировку в квартире
Перепланировка квартиры – это затратное мероприятие. Но в данном случае…
Согласование перепланировки нежилого помещения
Согласование и узаконивание перепланировки нежилого помещения во многом похоже на…
Запрещенные действия при перепланировке или переоборудовании
- Запрещен демонтаж несущих стен. А также создание нишь. Это может привести к обрушению здания.
- Штробление и пробивание отверстий в плите перекрытия. В лучшем случаи это приведет к трещине.
- Запрещено замуровывать газовые стояки в стену. Трубы должны быть свободны к осмотру и быстрому доступу (переносить при согласовании можно).
- Разрушение и закрытие вентиляционных каналов. Это обычно приводит к излишней сырости и плесени, что уменьшает срок службы зданий.
- Установка санузлов над жилыми комнатами. Из-за возможных протечек и нежелательных шумов.
- Запрещено делать водяные теплые полы за счёт общего отопления и горячей воды. Даже если вы сделаете это незаметно, у соседей сверху станет плохой напор или холодные батареи и после одного-двух вызовов мастера всё станет ясно.
- Запрещено монтирование перегородок при которых образуются комнаты менее 8м2 и кухни без естественного освещения. Речь идет о жилых комнатах, к кладовкам, гардеробам и санузлам это не относится.
- Запрещено оборудования жилых комнат ниже уровня земли (цокольный этаж и подвал).
Что нельзя делать при перепланировке квартиры
Некоторые работы не получится согласовать ни за какие деньги никаким посредникам. Все они могут не только причинить вред целостности дома, но и несут угрозу безопасности соседей и пожарной безопасности. К ним относятся запрет на:
- Действия создающие опасность для проживания в доме и целостности его конструкции.
- Загораживание инженерных коммуникаций или аварийных выходов, устройства отключения коммуникаций.
- Повреждение несущих конструкций опасное для всего сооружения.
- Работы, делающие соседние помещения непригодными для использования.
- Включение в инженерные сети устройств влияющих на потребление коммунальных ресурсов соседями.
- Сокращение или полной устранение вентиляционной системы.
- Создание перегородок или половых стяжек и другие работы повышающие нагрузку на перекрытия до опасного уровня, превышающего проектные значения.
- Перенос элементов системы отопления на лоджии и балконы.
- Включение теплых полов к общедомовым инженерным сетям водо- и теплоснабжения.
- Работы нарушающие требования пожарной, санитарной и другой безопасности.
- Штробление пол электропроводку и для других коммуникаций по горизонтальным швам строения, или между панелями стен.
- Использование технически подпольных помещений в качестве подвалов.
- Устройство террас вне базового проекта далее второго этажа.
- Объединение газифицированной кузни с жилым помещением.
- Расширение санузла за счет жилых помещений.
- Вынос батарей отопления на наружные балконы, лоджии и т.д.
- Изменение наружного вида домов признанных культурным наследием, в том числе пробивание мансардных окон и изменение габаритов имеющихся проемов.
- Перепланировка аварийных домов.
- Изменение конфигурации и переустройство чердака, технического подвала и других помещений относящихся к общедомовому имуществу.
- Создание проемов в стыках сборных элементов, сиенах – диафрагмах и пилонах.
Если же такие работы были произведены, а затем обнаружены жилищной инспекцией, виновному придется понести административную ответственность.
Чего делать категорически нельзя?
Существуют вещи, которые при перепланировке квартиры осуществлять категорически воспрещается. Рассмотрим их подробнее:
- нельзя осуществлять работы, направленные на ухудшение характеристик капитальных стен. Запрещается как их снос, так и увеличение нагрузки. СПРАВКА. Согласно Жилищному кодексу РФ, штраф за незаконную перепланировку квартиры достигает суммы в 4000 рублей.
- Не разрешается использование общедомовых коммуникаций для преобразования своего жилья. Зачастую здесь имеется в виду отопление и эксплуатация горячей воды.
- Категорически запрещается нарушать работу вентиляционных систем, труб газа и водяных стояков. Изменения, касающиеся этих систем, нужно согласовывать с специализирующимися органами и получать разрешение.
- Незаконно будет самостоятельно в значительной мере изменять положение санузла. Установка, например, ванной над жилой зоной соседей недопустима.
- Не разрешается уменьшать площадь жилых помещений за счёт увеличения количества квадратных метров в нежилых.
Если планировка квартиры и ваши желания не совпадают, это можно исправить. Конечно, сбор документов и проведение перепланировки займёт много времени, но в результате будет расширена самая востребованная в жилище часть, что несомненно скажется на степени удобства проживания в нём.
Теперь, зная все тонкости о законности переустройства жилья, вы много раз подумаете при появлении такой возможности.
Что относится к перепланировке?
Проектному согласованию подлежат:
- Перенос, разборка и перестройка перегородок между комнатами;
- Смещение и постановка дверных заслонов;
- Изменение пространства жилья, имеющей много жилых помещений;
- Преобразование проемов в перекрытиях;
- Снос части основных конструкций;
- Образование коридора;
- Изменение кухонного пространства, санузла;
- Перемещение места расположения туалетной и ванной комнат, кухни;
- Соединение санузлов;
- Получение новых помещений;
- Увеличение жилой территории за счет нежилой;
- Замена газовых установок на иные;
- Перенос электробытовых точек, топливных систем;
- Проведение вентиляционных выходов.
Для осуществления таких видов работ нужно получать разрешение соответствующих инстанций.
Кроме того, существуют реконструкционные работы, которые нельзя производить. Это переустройство квартиры:
- Несогласованное с остальными собственниками либо жильцами;
- Без соблюдения требований инженерной, санитарной, строительной, эксплуатационной защиты недвижимости;
- Допускающее осложнение условий использования помещения или проживания людей;
- Связанное с построением или удалением несущих стен, влекущих создание помещения без естественного освещения или централизованных отопительных приборов;
- Вследствие чего возникают перемены в архитектуре здания.
Категорически запрещается:
- Встраивать газопровод в стену;
- Закрывать вентиляционные люки;
- Объединять лестничные площади и коридор;
- Изменять расположение кухонных и ванных комнат;
- Соединять территорию лоджии и площадь внутреннего размещения;
- Проведение демонтажа порогов, размещенных на выходах с балкона;
- Демонтаж блоков подоконников;
- Увеличение уже существующих проемов в наружных конструкциях на входе с лоджии;
- Разбор блока подоконника, если с его помощью удерживается балконная плита;
- Соединение двух жилых объектов, если их собственниками являются разные люди. Это возможно, когда владельцем является один и тот же человек;
- Сооружать препятствия доступу к коммуникационным и контролирующим измерителям.
Не считаются перепланировкой действия по:
- Проведению косметических работ;
- Установление дополнительных дверей;
- Монтаж входных загородок;
- Замена встроенных шкафов и других приспособлений;
- Устанавливание новой сантехники.
Такие мероприятия могут производиться по желанию владельца без разрешения контролирующих органов. Если они направлены на ухудшение собственных жилищных условий без нарушения интересов других жильцов, то инспекция требует их согласовывать подачей заявления, представленного собственником, о желании добровольно умалить такими действиями своё проживание. Такая заявка должна иметь нотариальное удостоверение.
Чего делать нельзя?
| Согласно нормативным документам, нельзя проводить следующие работы |
|---|
| Мокрая зона не может выходить в пространство жилой комнаты. Во-первых, звук воды будет мешать соседям, поскольку изолировать от него квартиру не получится. Во-вторых, санузлы должны располагаться друг над другом. |
| Над помещением кухни нельзя делать санузел. |
| Размещать кухню над помещением, которое относится к жилым. Для нее тоже существует требование по размещению: кухня должна находиться только над кухней. |
| Выносить батареи на лоджию или балкон. |
| Нельзя создавать теплые полы из централизованного отопления. Также не допускается удлинять промежуток от отопительного прибора к стояку. |
| Неприемлемо убирать несущие стены или элементы. Не стоит штробить колонны под розетки. Делать проем в такой стене можно, если усилить его и согласовать проект перепланировки. В панельных домах этого делать вообще нельзя. |
| При газовой плите на кухне нельзя объединять это помещение со смежным, удаляя простенок. Должна быть определенная степень перегородки. |
Жилищный кодекс поможет разобраться в любом вопросе, касающемся изменения плана дома или квартиры

























































